Il est très courant de commencer à dessiner une pièce et de se rendre compte que les dimensions ne sont pas parfaites. Vous n'avez pas besoin de recommencer depuis le début, à partir de la version 12.4a3 Winner propose les possibilités suivantes pour modifier les dimensions :
Ajustement des angles
- Sélectionner définition de la pièce mode:
- Cliquez sur le mur, après l'angle que vous souhaitez modifier.
-
Faites un clic droit et sélectionnez Propriétés des murs, où vous verrez un aperçu de la forme de la pièce.
Le code couleur de l’aperçu de la pièce est le suivant :
- Le mur actuel (sélectionné) est violet.
- Les anciens murs sont signalés par une ligne pointillée grise.
- Les murs modifiés par la nouvelle forme de la pièce sont noirs.
- Les murs qui ne sont pas modifiés sont représentés par des lignes grises.
-
Choisissez, en sélectionnant l'une des icônes ci-dessous, si vous souhaitez
Déplacer les murs précédents Déplacer le(s) mur(s) suivant(s), c'est la valeur par défaut Ajustez uniquement le mur sélectionné - conservez tous les autres murs et angles.
- Entrer le nouvel angle et vous verrez toute la pièce mise à jour dans la fenêtre d'aperçu.
Note: une baguette magique apparaîtra devant la longueur d'un mur calculé automatiquement.
- Si vous êtes satisfait, cliquez D'ACCORD, si vous avez fait une erreur, cliquez Réinitialiser la forme.
- Une fois que vous aurez cliqué sur OK, vous verrez que les longueurs et les angles des murs auront été automatiquement ajustés pour vous.
Ajuster la longueur des murs
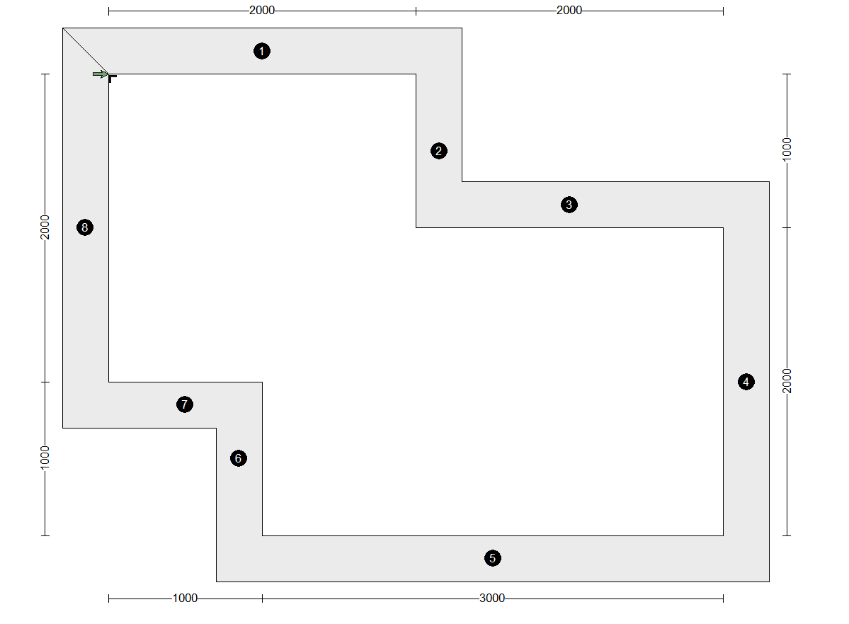
Voici un exemple de plan :
Le client nous informe que certaines mesures sont incorrectes :
- Le mur 3 doit être de 1m
- Mur 4 : 1,5 m
- Mur 5 : 2m
- Mur 8 : 1,5 m
Nous avons 4 murs à modifier. Voici comment faire simple :
-
Dans Mode de définition de pièce.
-
Sélectionnez le premier mur à ajuster. Dans cet exemple c'est 3 .
Clic-droit et sélectionnez Propriétés du mur.
Note: Nous recommandons de modifiez vos murs dans le sens des aiguilles d'une montre.
-
Choisissez, en sélectionnant l'une des icônes ci-dessous, si vous souhaitez
Déplacer le(s) murs précédent(s). Si la longueur du mur est modifiée et non l'angle, la seule option est de décaler parallèlement le mur précédent. Déplacer le(s) mur(s) suivant(s) par défaut. Si la longueur du mur est modifiée, vous pourrez basculer entre deux options. Celui où l'angle par rapport au mur suivant est conservé et celui où le point final du mur suivant est conservé.
Ajustez uniquement le mur sélectionné - conservez tous les autres murs et angles. Lorsque cette option est sélectionnée, tous les murs conservent leur angle et leur longueur, ce qui peut entraîner une ouverture de la pièce.
Dans cet exemple, nous le laisserons par défaut Déplacez le(s) mur(s) suivant(s).
-
Changer la longueur du mur . Dans cet exemple, le chiffre devrait être 1000 au lieu de 2000.
Note: dans les cas où il existe plusieurs solutions pour la nouvelle forme de la pièce, un basculer entre les formes de la pièce L'icône apparaîtra :
cliquez dessus pour basculer entre les options disponibles = changer un angle ou un décalage parallèle.
- Vous pouvez voir le changement immédiatement dans l'aperçu du plan.
-
Si vous êtes satisfait, cliquez OK, si vous avez fait une erreur, cliquez Réinitialiser la forme.
- Utilisez la même méthode pour modifier les autres murs (4, 5 et 8).
Note: Vous verrez dans la vidéo ci-dessous qu'il n'est pas nécessaire d'ajuster le mur 5 manuellement car il est automatiquement ajusté en fonction des modifications apportées au mur 4.