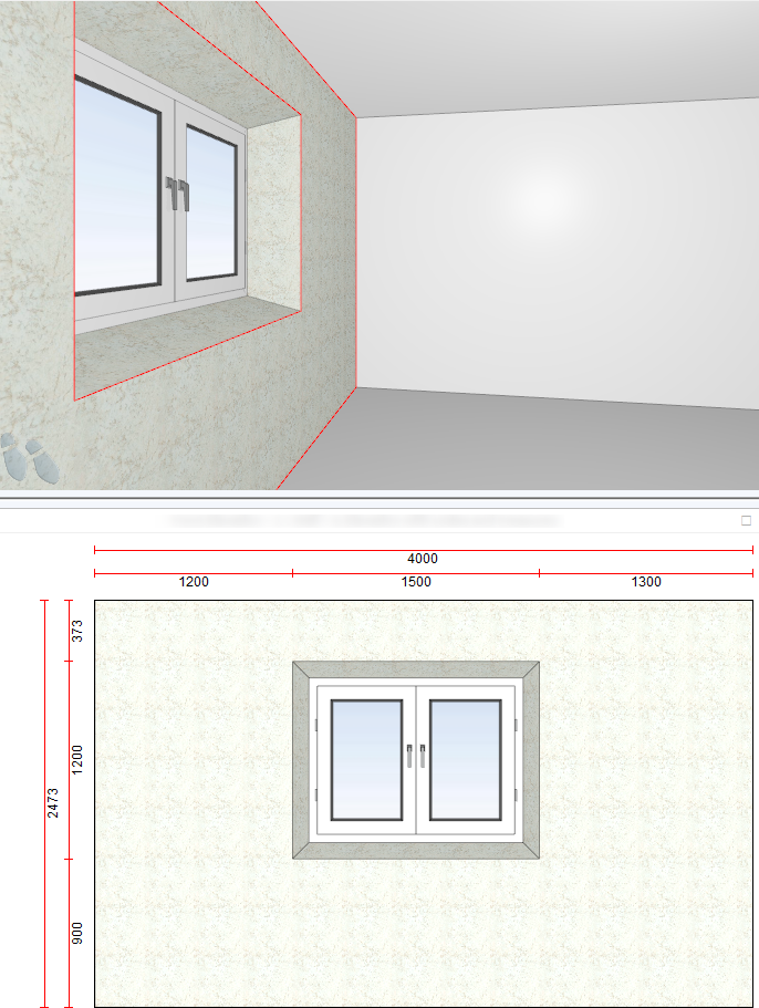
Dans Winner, les utilisateurs peuvent ajouter des fenêtres avec une embrasure. Une embrasure, ou embrasure inclinée, est une ouverture dans un mur qui est biseautée ou évasée à l'intérieur, comme illustré ci-dessous:
Pour accéder à une fenêtre pour le mur
Au niveau de l'option:
- Sélectionner Définition de pièce depuis les modes de dessin:

- Sélectionnez le mur auquel vous souhaitez ajouter une Fenêtre.
- Faites un clique droit et sélectionnez Ajouter objet.
OU
Cliquez sur le bouton Ajouter un objet mural:

- Sélectionnez le menu déroulant Fenêtres de la liste Les objets contre le mur, située sur le côté gauche de l'écran.
- Sélectionner Fenêtre, spéciale.
- Sélectionnez une fenêtre avec une embrasure et cliquez sur OK.
Note: si vous ne savez pas si la fenêtre a une embrasure, cliquez avec le bouton gauche pour la sélectionner, puis cliquez et faites glisser pour faire pivoter la fenêtre sélectionnée dans la fenêtre d'aperçu. - Définissez les dimensions de votre fenêtre et cliquez sur OK.
- Définissez l'emplacement de la fenêtre et cliquez sur OK.
Pour accéder à une fenêtre pour le plafond
Voir l'article Comment insérer une fenêtre dans un plafond ou un plafond en pente.