In Winner, sectional views are a tool to provide more elevations in the Front Elevation window. Sectional views can be used to create elevation printouts of an island or items that are not placed along a wall. Initially, the window will only show elevations of each wall drawn.
Drawing a sectional view
At Alternative level, in Room definition mode or Furnishing mode:
- Click the Draw/alter sectional view icon in the Toolbar.
- Ensure the Draw tool icon is clicked
- In the Plan window, first left-click where you want the sectional view to start.
-
Left-click again where it will end.
The sectional view will appear as a line, with dotted lines equally placed on both sides.
The dotted lines are signifiers of the Clipping distance. This identifies how much of the area is in the sectional view zone, which will then be shown in the elevation. If the clipping distance is very short, cabinets may not show on the Front elevation. This can be changed in the Sectional view properties.
The triangle indicates which way the elevation is facing. The side with the triangle facing the sectional view is what will be presented in the Front elevation.
The Sectional view will automatically have a number reference like each wall. This can be changed in the Sectional view properties.
Note: Once drawn the sectional view solid line can be clicked on and the selected sectional view will show in the elevation window.
Change the direction of a sectional view
At Alternative level, in Room definition mode or Furnishing mode:
- Click the Draw/alter sectional view icon in the Toolbar.
- Click the Select tool icon.
- Left-click the Sectional view to select it.
- Right-click and select Swap direction.
Edit a Sectional View
At Alternative level, in Room definition mode or Furnishing mode:
- Click the Draw/alter sectional view icon in the Toolbar.
- Click the Select tool icon.
- Left-click the Sectional view to select it.
- Right-clicking will bring up a selection of options to edit the Sectional view.
-
-
Create measures will generate measurements of units within the clipping distance of the sectional view in the Plan window.
-
Parallel shift will enable you to type in a specific distance to move the sectional view.
The direction in which the line is moved is set via the + or -
-
Swap Direction will swap the direction of the Front elevation viewpoint.
-
Properties will open the Wall section properties. Here you can change the:
- Length: Defines the length of the wall section.
- Front clip dist: Defines the distance of the sectional view from the front clipping (shown by a dashed blue line).
- Back clip dist: Defines the distance of the sectional view from the back clipping (shown by a dashed blue line).
- Height: Defines the height of the viewing area.
- Distance from floor: Defines the distance of the Sectional view from the floor.
Note: If the sectional view is touching an external wall and you set a distance from the floor which is higher than that of the cursor height, the sectional view will no longer be shown in the elevation window.
- Name: Defines the name of the Sectional view. The name is automatically assigned and follows on from wall numbering in the order you placed the sectional view(s). To change it just untick the checkbox.
- Check for intersections with walls during automatic position numbering of cabinets: If the sectional view intersects with the wall and this checkbox is ticked (which is the default setting) then Winner will use the sectional view as a wall for calculating the cabinet numbers. If you untick this flag, then cabinet numbers will not be affected by any changes to the position of the sectional view.
The purpose of this checkbox when ticked is that the numbering of cabinets will first follow along the wall, then if a sectional view touches the wall, Winner will number the cabinets along one side of the sectional view, then on the other side of the sectional view and then continue along the wall again.
-
Create measures will generate measurements of units within the clipping distance of the sectional view in the Plan window.
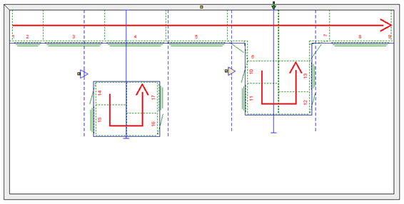
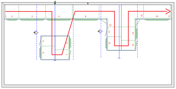
| When checkbox is ticked (the default) | When checkbox is unticked |
| The red line signifies the direction Winner will follow to automatically number the cabinets. In the left diagram it treats the sectional view as a wall. In the right diagram it numbers cabinets along the external wall first then the sectional views. | |
Print a sectional view
At Alternative level, in Room definition mode or Furnishing mode:
- Click the solid line of the sectional view to select it.
- The elevation view will now show you the items that the arrow is pointing at.
Note: to change the direction of the sectional view see steps in the above named section.
- Select the Elevation window and right click select the option Export or Print elevation.
Note: To include sectional views in batch prints see: How to add sectional views to a batch print
Related articles
How can I add measures to sectional views in Plan view?