I Winner används ordet installationer för strömbrytare, rör, uttag, mm. Ibland behöver man visa symbolerna på en köksö eller i en vägg med hörn eller en list. För att göra detta använder du en sektionsvy.
Den här artikeln ger instruktioner om att placera en sektionsvy och hur man infogar installationsobjektet.
Placera en sektionsvy
- Gå till Rumsdefinitions läget i det övre vänstra hörnet:
-
Eftersom det är bra att se köksmöblerna i planritningen för nästa steg, högerklickar du med musen på planen och väljer Visa.
-
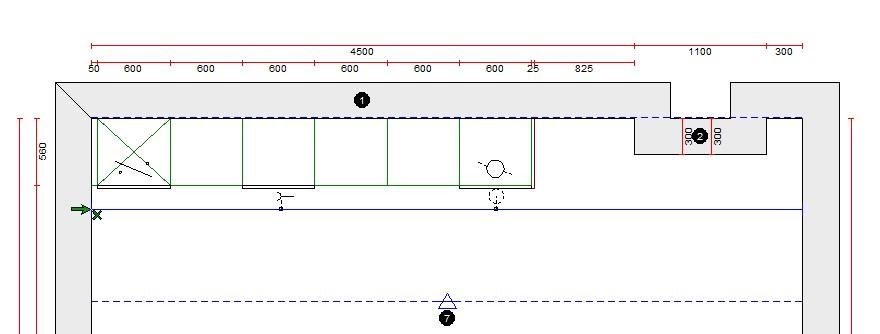
Välj alternativet Rum med installationer och underskåp.
Notera: För att se andra möbler förutom basenheter: I Synliga lager menyn har du alternativet Definiera profil välj detta och under Objektsynlighet kan du klicka på knapparna enheter mellan B och W (sockel och vägg) och/eller Väggenhet såsom krävs.
-
Rita en egendefinierad vy på planritningen:
Se artikel Egendeninerade vyer för hur man gör detta.
Exempel 1: Om du har en köksö på planritningen, rita snittet i mitten av den och täck hela dess längd:
Exempel 2: När du har en list eller en vägg med hörn, rita snittet mittemot väggen, nära den och täck hela dess längd:
- Klicka på ikonen Välj verktyg
klicka sedan på sektionsraden. När den väl har valts är sektionsvyn aktiv och gul i planen. Detta innebär att du kan välja olika alternativ för sektionsvyn med höger musknapp. För mer information om tillgängliga alternativ, se artikeln Sektionsvyer.
Sätt in installationer på en sektionsvy
- När linjen för den egendefinerade vyn är aktiv (se punkt 5 ovan), klicka på höger mus knapp.
- Välj lägg till installationssymbol.
- Välj den installation du vill ha och klicka OK.
Tips För en snabbsökning, är installationssymbolerna klassificerade i olika grupper i den vänstra delen av Välj objektfönster: elektriskt, VVS-utrustning, gas, nummer, bokstäver och diverse.
Klicka på sökknappen till höger för att hitta den symbol du behöver genom att ange installationstyp i sökrutan, till exempel rektangulärt hål. Winner kommer att visa dig alla symboler som innehåller söktexten i beskrivningen.
-
Du kan ställa in objektets position i Välj placering för objekt fönstret. Du kan ändra de olika värdena för en parameter genom att klicka på dess rad och ange värdet i fältet längst ner i fönstret.
- Klicka på OK och du kommer att se symbolen i plan- och eller elevationsvyn.
Relaterade artiklar
Hur ställer jag in från vilken referenspunkt installationsmåtten ska börja?
Hur kan jag lägga till åtgärder till egendefinerade vyer i planritningen?
Hur man lägger till egendefinerade vyer till ett batchutskrift