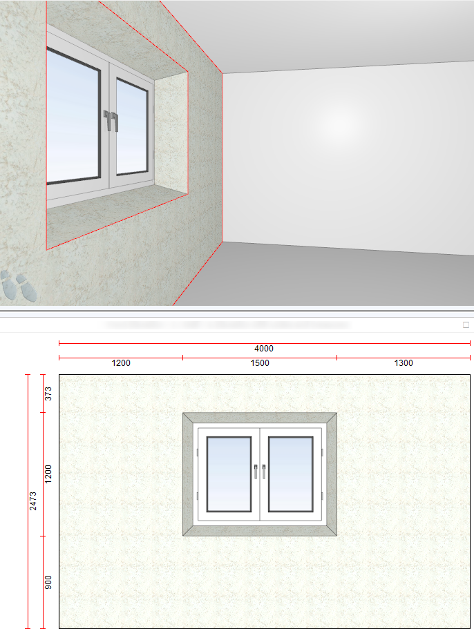
In Winner, gli utenti possono aggiungere finestre con una feritoia. Una feritoia, o spiovente ad angolo è un'apertura in un muro che è smussata o allargata all'interno, come mostrato di seguito:
Per accedere a una finestra per il muro
A livello di Variante:
- Selezionare Definizione della stanza dalle modalità di disegno:

- Seleziona il muro dove si vuole aggiungere la Finestra.
- Fai clic con il pulsante destro del mouse e selezionare Aggiungi oggetto.
Oppure
Clicca sul pulsante Aggiungi oggetto al muro selezionato:

- Selezionare il sotto-gruppo finestre dal menu, sotto l'elenco Oggetti sul muro che si trova sul lato sinistro dello schermo.
- Selezionare Finestra, speciale.
- Selezionare una finestra con una feritoia e fare clic su OK.
Nota: se non sei sicuro che la finestra abbia una feritoia, fai clic con il pulsante sinistro del mouse per selezionarla, quindi fai clic e trascina per ruotare il disegno 3d nel riquadro di anteprima in alto a sinistra. - Impostare le dimensioni della finestra e fare clic su OK.
- Impostare la posizione della finestra e fare clic su OK.
Per inserire un lucernario nel soffitto
Vedi articolo Come inserire un lucernario nel soffitto o in una mansarda.