È molto comune iniziare a disegnare una stanza e rendersi conto che le dimensioni non sono perfette. Non è necessario ricominciare da capo, dalla versione 12.4a3 Winner offre le seguenti possibilità per modificare le dimensioni:
Sistemazione degli angoli
- Selezionare la modalità definizione della stanza:
- Clicca il muro, poi l'angolo che desideri modificare.
-
Fai clic con il tasto destro e seleziona Proprietà del muro, dove vedrai l'anteprima della forma della stanza.
La codifica dei colori dell'anteprima della stanza è la seguente:
- Il muro corrente (selezionato) è viola.
- Le vecchie pareti sono indicate con una linea grigia tratteggiata.
- Le pareti modificate dalla nuova forma della stanza sono nere.
- I muri che non vengono modificati vengono visualizzati come linee grigie.
-
Scegli, selezionando una delle icone sottostanti, se lo desideri
Sposta il/i muro/i precedente/i Sposta i muri successivi: questa è l'impostazione predefinita Modifica solo il muro selezionato: mantieni tutti gli altri muri e angoli.
- Inserisci il nuovo angolo e vedrai l'intera stanza aggiornata nella finestra di anteprima.
Nota: una bacchetta magica apparirà prima della lunghezza di un muro calcolato automaticamente.
- Se sei soddisfatto clicca OK, se hai commesso un errore clicca Ripristina la forma.
- Dopo aver fatto clic su OK vedrai che le lunghezze e gli angoli delle pareti saranno stati regolati automaticamente per te.
Regolazione della lunghezza delle pareti
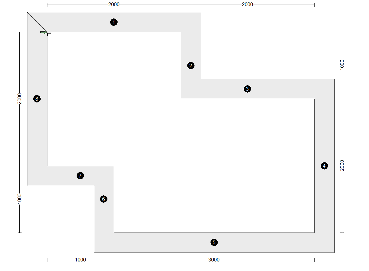
Ecco un esempio di planimetria:
Il cliente ci informa che alcune misurazioni non sono corrette:
- Il muro 3 deve essere lungo 1m
- Il muro 4: 1,5m
- Il muro 5: 2m
- Il muro 8: 1,5m
Abbiamo 4 muri da modificare. Ecco come farlo in modo semplice:
-
In modalità di Definizione della stanza.
-
Selezionare il primo muro da regolare. In questo esempio è il Muro 3.
Clicca con il tasto destro e seleziona Proprietà del muro.
Nota: Consigliamo di modificare i muri in senso orario.
-
Scegli, selezionando una delle icone sottostanti, se lo desideri
Sposta i muri precedenti. Se viene modificata la lunghezza del muro e non l'angolo, l'unica opzione è spostare parallelamente il muro precedente. L'impostazione predefinita è Sposta i muri successivi. Se la lunghezza del muro viene modificata sarai in grado di alternare tra due opzioni. Una in cui viene conservato l'angolo rispetto al muro successivo e una in cui viene conservato il punto finale del muro successivo.
Regola solo il muro selezionato: mantieni tutti gli altri muri e angoli. Quando selezionati, tutti i muri mantengono l'angolo e la lunghezza, ciò potrebbe comportare l'apertura della stanza.
In questo esempio lasceremo il predefinito Sposta i muri successivi.
-
Cambiare la Lunghezza del muro. In questo esempio dovrebbe essere 1000 invece di 2000.
Nota: nei casi in cui ci siano più soluzioni per la nuova forma della stanza apparirà l'icona per le alternative di forma della stanza:
cliccare qui per alternare tra le opzioni disponibili = modificare un angolo o usare uno spostamento parallelo.
- Puoi vedere immediatamente la modifica nell'anteprima della planimetria.
-
Se sei soddisfatto clicca OK, se hai commesso un errore clicca Reimposta la forma.
- Utilizza lo stesso metodo per modificare gli altri muri (4, 5 e 8).
Nota: Vedrai dal video qui sotto che non è necessario regolare manualmente la parete 5 poiché viene regolata automaticamente in base alle modifiche apportate alla parete 4.