Una delle viste che Winner offre è la planimetria o piantina della stanza. Mostra le pareti, le unità, i soffitti inclinati, le finestre, le porte e altre installazioni in una prospettiva dall'alto verso il basso. Le altre viste sono la Prospettiva (vedi anche Come muoversi nella prospettiva) e la Vista frontale (vedi anche Configurazione finestra: Pianta/Prospettiva/Vista).
Questo articolo indica come ruotare liberamente la planimetria e come ruotarla in un determinato numero di gradi.
Per ruotare liberamente la planimetria
- Clicca sull'icona Definizione locale nella barra degli strumenti:
- Fai clic sulla finestra Planimetria.
- Clicca l'icona Ruota nella barra degli strumenti.
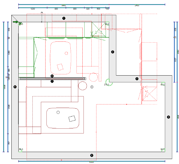
- Il piano è mostrato con colori come questo e il ruotare strumento è al centro del piano.
- Fai clic con il pulsante sinistro del mouse e tieni premuta una freccia di rotazione e trascina per ruotare.
- Mentre ruoti, la rotazione viene visualizzata con linee tratteggiate rosse e in basso a sinistra sullo schermo, vedrai il numero di gradi di rotazione.
- Quando hai completato la rotazione, rilascia il pulsante del mouse. Il pavimento sarà nella posizione desiderata.
Per ruotare la planimetria di un determinato numero di gradi
- Clicca sull'icona Definizione locale nella barra degli strumenti:
- Fai clic sulla finestra Planimetria.
- Clicca l'icona Ruota nella barra degli strumenti.
- Lo strumento ruota è ora al centro della planimetria.
- Fare doppio clic sul cerchio al centro dello strumento di rotazione. Questo aprirà la finestra seleziona la Rotazione.
- Immetti un valore nella casella seleziona la Rotazione e fai clic su Applica. Vedrai la planimetria spostarsi del numero di gradi inseriti.
Nota: I numeri positivi ruotano la planimetria in senso orario, i numeri negativi lo ruotano in senso antiorario. - Clicca OK per chiudere la finestra.
Articoli Correlati