Une des vues qu'offre Winner est le plan Il montre les murs, les meubles, les plafonds inclinés, les fenêtres, les portes et autres installations dans une perspective descendante. Les autres vues sont la Perspective (voir aussi, Comment se déplacer dans la perspective) et l'élévation (voir aussi, Configuration de la fenêtre : Plan/Perspective/Élévation).
Cet article montre comment faire pivoter librement le plan et comment le faire pivoter d'un certain nombre de degrés.
Pour faire pivoter librement le plan
- Cliquez sur l'icône Définition de la pièce dans la barre d'outils :
- Cliquez dans la fenêtre Plan
- Cliquez sur l'icône rotation dans la barre d'outils.
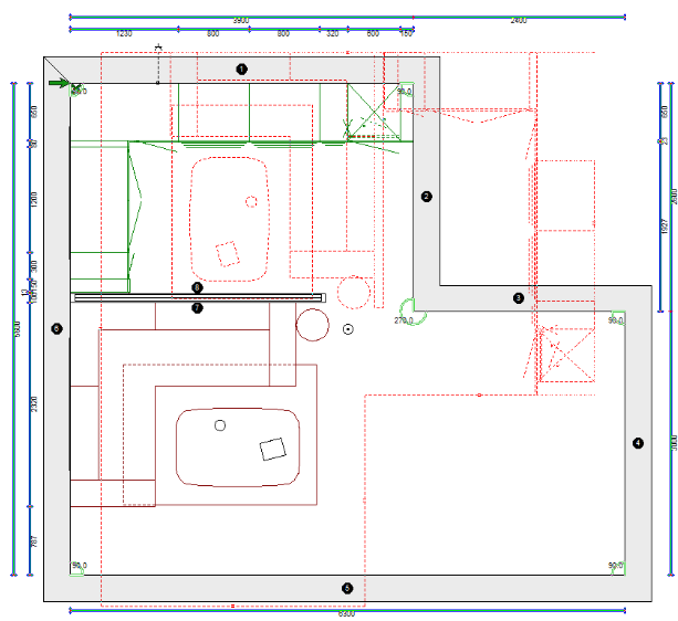
- Le plan est affiché avec des couleurs comme celle-ci et l'outil rotation est au centre du plan.
- Faites un clic gauche et maintenez sur une flèche de rotation et faites glisser pour faire pivoter.
- Lorsque vous tournez, le virage est indiqué par des lignes pointillées rouges et en bas à gauche de votre écran, vous verrez le nombre de degrés de rotation.
- Lorsque vous avez terminé la rotation, relâchez le bouton de la souris. Le sol sera dans la position souhaitée.
Pour faire pivoter le plan d'un nombre défini de degrés
- Cliquez sur l'icône Définition de la pièce dans la barre d'outils :
- Cliquez dans la fenêtre Plan
- Cliquez sur l'icône rotation dans la barre d'outils.
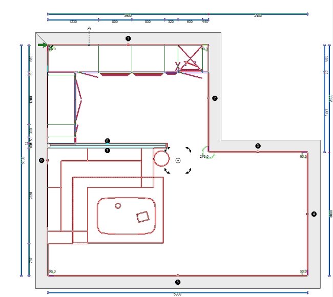
- L'outil rotation est maintenant au centre du plan.
- Double-cliquez sur le cercle au centre de l'outil de rotation. Cela ouvrira la fenêtre Faire pivoter la sélection.
- Entrez une valeur dans la case Faire pivoter la sélection et cliquez sur Appliquer. Vous verrez le plan se déplacer du nombre de degrés saisi.
Note: Les nombres positifs feront tourner le plan dans le sens des aiguilles d'une montre, les nombres négatifs le feront tourner dans le sens inverse des aiguilles d'une montre. - Cliquez sur OK pour fermer la fenêtre.
Articles Liés