Det er veldig vanlig å begynne å tegne et rom og innse at dimensjonene ikke er perfekte. Du trenger ikke starte på nytt fra begynnelsen, fra versjon 12.4a3 tilbyr Winner følgende muligheter for å endre dimensjoner:
Justering av vinkler
- Velg Romdefinisjon modus:
- Klikk på veggen, etter vinkelen du ønsker å endre.
-
Høyreklikk og velg Egenskaper, hvor du vil se en forhåndsvisning av romformen.
Fargekoden for forhåndsvisningen av rommet er som følger:
- Den nåværende (utvalgte) veggen er lilla.
– De gamle veggene er angitt med en grå stiplet linje.
– Vegger som endres av den nye romformen er svarte.
- Vegger som ikke endres vises som grå linjer.
-
Velg, ved å markere ett av ikonene nedenfor, om du vil
Flytte forrige vegg(er) Flytte neste vegg(er) dette er standard Justere kun valgt vegg - behold alle andre vegger og vinkler.
- Skriv inn ny vinkel, og du vil se hele rom oppdateringen i forhåndsvisning vinduet.
Merk: en tryllestav vil dukke opp før lengden på en automatisk beregnet vegg.
- Hvis du er fornøyd klikk OK, hvis du har gjort en feil klikk Tilbakestill form.
- Når du har klikket OK vil du se at vegglengder og vinkler automatisk har blitt justert for deg.
Justering av vegglengder
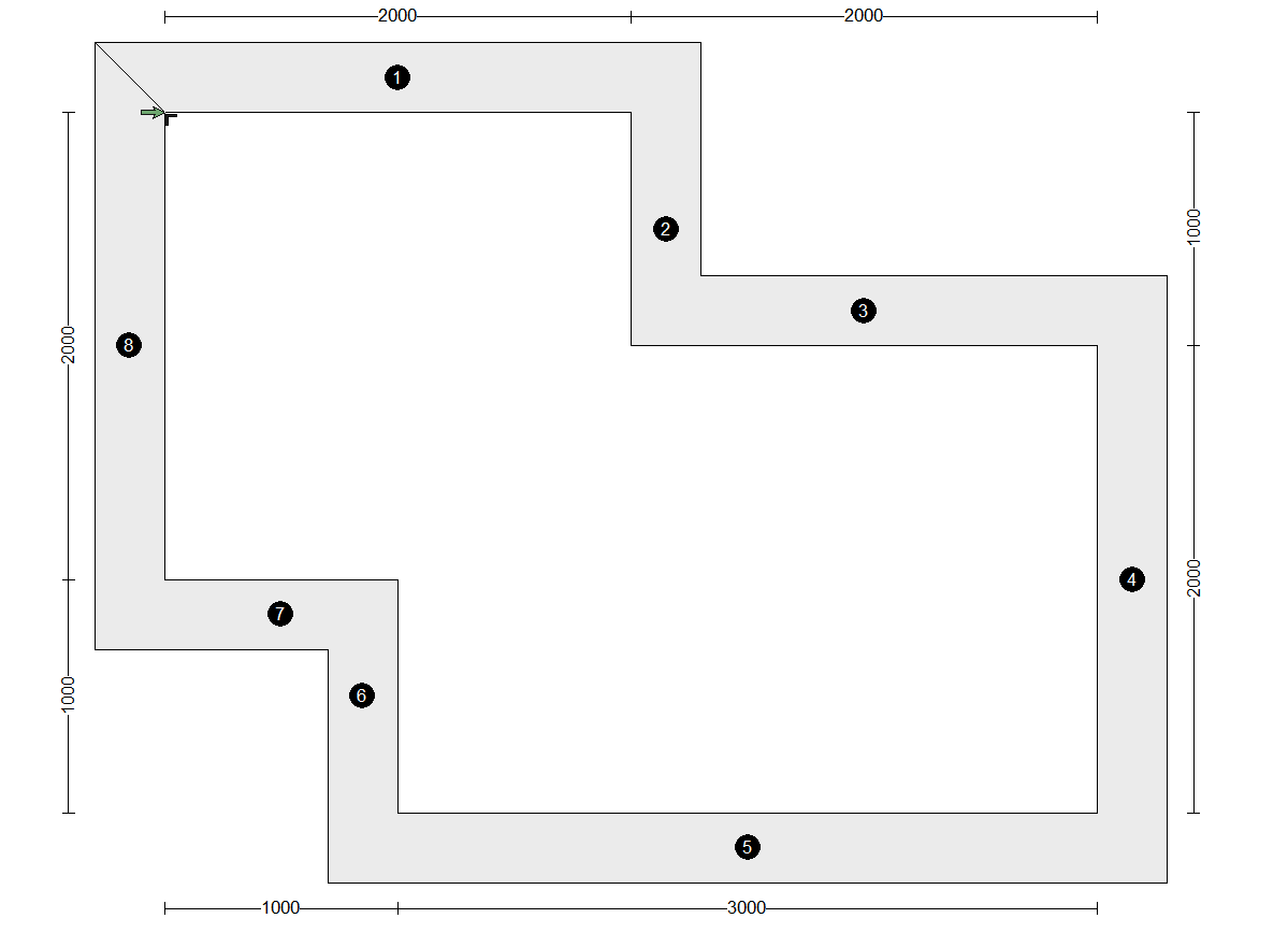
Her er et eksempel på en plan:
Kunden informerer oss om at noen mål er feil:
- Vegg 3 skal være 1m
- Vegg 4: 1,5m
- Vegg 5: 2m
- Vegg 8: 1,5m
Vi har 4 vegger å modifisere. Slik gjør du det enkelt:
-
I Romdefinisjon modus.
-
Velg den første veggen som skal justeres. I dette eksemplet er det Vegg 3.
Høyreklikk og velg Egenskaper.
Merk: Vi anbefaler til mmodifiser veggene dine med klokken.
-
Velg, ved å markere ett av ikonene nedenfor, om du vil
Flytt forrige vegg(er). Hvis vegglengden endres og ikke vinkelen, er det eneste alternativet å parallellforskyve den forrige veggen. Flytt neste vegg(er) dette er standard. Hvis vegg lengden endres, vil du kunne veksle mellom to alternativer. En hvor vinkelen til neste vegg er bevart og en hvor endepunktet til neste vegg er bevart.
Juster kun valgt vegg - behold alle andre vegger og vinkler. Når det er valgt, beholder alle vegger sin vinkel og lengde, dette kan føre til at rommet åpnes.
I dette eksemplet vil vi la det være standard Flytt neste vegg(er).
-
Endre vegg Lengde. I dette eksemplet skal det være 1000 i stedet for 2000.
Merk: i tilfeller der det er mer enn én løsning for den nye romformen vil veksle mellom rom formene ikonet vises:
klikk på dette for å veksle mellom tilgjengelige alternativer = endre en vinkel eller parallellforskyvning.
- Du kan se endringen umiddelbart i forhåndsvisningen av planen.
-
Hvis du er fornøyd klikk OK, hvis du har gjort en feil klikk Tilbakestill form.
-
Bruk samme metode for å modifisere de andre veggene (4, 5 og 8).
Merk: Du vil se fra videoen nedenfor at det ikke er nødvendig å justere vegg 5 manuelt, da den justeres automatisk basert på endringene som er gjort på vegg 4.