In Winner, doorsneden zijn een hulpmiddel om meer verhogingen in de Hoogte voorzijde raam. Doorsneden kunnen worden gebruikt om hoogteafdrukken te maken van een eiland of van items die niet langs een muur zijn geplaatst. In eerste instantie toont het venster alleen de verhogingen van elke getekende muur.
Een doorsnede tekenen
Op Alternatief niveau, in Ruimtedefinitie modus of Meubilering modus:
- Klik op de Doorsnede tekenen/wijzigen pictogram in de werkbalk.
- Zorg ervoor dat de Tekengereedschap icoon is geklikt
- In de Plan raam, eerst links klikken waar u de doorsnede wilt laten beginnen.
-
Links klikken weer waar het zal eindigen.
De doorsnede wordt weergegeven als een lijn, met stippellijnen aan beide zijden.
De stippellijnen zijn betekenaars van de Knippen afstand. Dit geeft aan hoeveel van het gebied zich in de doorsnedezone bevindt, die vervolgens in de hoogte wordt weergegeven. Als de clipafstand erg kort is, worden de kasten mogelijk niet weergegeven op de Vooraanzicht. Dit kan worden gewijzigd in de eigenschappen van het doorsnedeaanzicht.
De driehoek geeft aan in welke richting de hoogte is gericht. De zijde met de driehoek die naar de doorsnede is gericht, wordt in de voorgevel weergegeven.
De doorsnede heeft automatisch een nummerverwijzing zoals elke muur. Dit kan worden gewijzigd in de eigenschappen van het doorsnedeaanzicht.
Opmerking: Nadat u de doorlopende lijn van de doorsnede hebt getekend, kunt u erop klikken. De geselecteerde doorsnede wordt dan weergegeven in het aanzichtvenster.
De richting van een doorsnede wijzigen
Op Alternatief niveau, in Ruimtedefinitie modus of Meubilering modus:
- Klik op de Doorsnede tekenen/wijzigen pictogram in de werkbalk.
- Klik op de Selecteer gereedschap icoon.
- Klik met de linkermuisknop op de doorsnede om het te selecteren.
- Klik met de rechtermuisknop en selecteer Wissel van richting.
Een doorsnede bewerken
Op Alternatief niveau, in Ruimtedefinitie modus of Meubilering modus:
- Klik op de Doorsnede tekenen/wijzigen pictogram in de werkbalk.
- Klik op de Selecteer gereedschap icoon.
- Klik met de linkermuisknop op de doorsnede om het te selecteren.
- Rechts klikken zal een selectie van opties weergeven om de doorsnedeweergave te bewerken.
-
-
Maatregelen maken genereert metingen van eenheden binnen de clipafstand van de doorsnede in het Plan-venster.
-
Parallelle verschuiving stelt u in staat om een specifieke afstand in te voeren om de doorsnede te verplaatsen.
De richting waarin de lijn wordt verplaatst, wordt ingesteld via de +of -
-
Wissel van richting zal de richting van het vooraanzicht verwisselen.
-
Eigenschappen opent de eigenschappen van de sectie Wand. Hier kunt u de:
- Lengte: Definieert de lengte van het wandgedeelte.
- Voorste clip afstand: Definieert de afstand van de doorsnede vanaf de voorste clipping (weergegeven door een blauwe stippellijn).
- Achterclip afstand: Definieert de afstand van de dwarsdoorsnede vanaf de achterste clipping (weergegeven door een blauwe stippellijn).
- Hoogte: Definieert de hoogte van het weergavegebied.
- Afstand vanaf vloer: Definieert de afstand van de doorsnede tot de vloer.
Opmerking: Als de doorsnede een buitenmuur raakt en je stelt een afstand tot de vloer in die hoger is dan de cursorhoogte, dan wordt de doorsnede niet meer getoond in het elevatievenster.
- Naam: Definieert de naam van de doorsnede. De naam wordt automatisch toegekend en volgt op de wandnummering in de volgorde waarin je de doorsnede(n) hebt geplaatst. Om het te wijzigen, schakelt u het selectievakje uit.
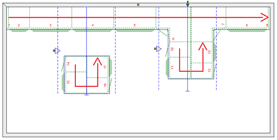
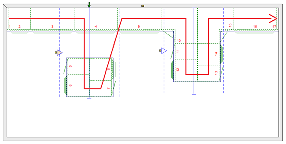
- Controleer op kruispunten met muren tijdens automatische positienummering van kasten: Als de doorsnede de muur kruist en dit selectievakje is aangevinkt (wat de standaardinstelling is), gebruikt Winner de doorsnede als muur voor het berekenen van de kastnummers. Als u dit vlaggetje uitvinkt, worden de kastnummers niet beïnvloed door wijzigingen in de positie van de doorsnede.
Het doel van dit selectievakje als dit is aangevinkt, is dat de nummering van de kasten eerst langs de muur volgt, en als een doorsnede de muur raakt, zal Winner de kasten aan de ene kant van de doorsnede nummeren en vervolgens aan de andere kant van de doorsnede. uitzicht en ga dan weer langs de muur.
-
Maatregelen maken genereert metingen van eenheden binnen de clipafstand van de doorsnede in het Plan-venster.
| Als het selectievakje is aangevinkt (de standaardinstelling) | Als het selectievakje is uitgeschakeld |
| De rode lijn geeft de richting aan die de winnaar zal volgen om de kasten automatisch te nummeren. In het linker diagram behandelt het de doorsnede als een muur. In het rechter diagram worden eerst de kasten langs de buitenmuur genummerd en daarna de doorsneden. | |
Een doorsnede afdrukken
Op Alternatief niveau, in Ruimtedefinitie modus of Meubilering modus:
- Klik op de doorlopende lijn van de doorsnede om deze te selecteren.
- In de aanzichtweergave ziet u nu de items waarnaar de pijl wijst.
Opmerking: om de richting van de doorsnede te veranderen, zie de stappen in het hierboven genoemde gedeelte. - Selecteer de Hoogte raam en klik met de rechtermuisknop Selecteer de optie Exporteren of Afdrukhoogte.
Opmerking: Zie voor het opnemen van doorsneden in batchprints: Hoe voeg ik doorsneden toe aan een batch-afdruk?
Gerelateerde artikelen
Hoe kan ik metingen toevoegen aan doorsneden in bovenaanzicht?