Una de las vistas que ofrece Winner es el plano de planta o plano de la habitación. Muestra las paredes, las muebles, los techos inclinados, las ventanas, las puertas y otras instalaciones en una perspectiva de arriba hacia abajo. Las otras vistas son la Perspectiva (ver también, Cómo moverse por la perspectiva) y el Alzado (ver también, Configuración de ventana: Planta/Perspectiva/Alzado).
Este artículo cubre cómo girar el plano de planta libremente y cómo girarlo un número determinado de grados.
Para girar el plano de planta libremente
- Haga clic en el icono de modo Definición de pieza en la barra de herramientas:
- Haga clic en la ventana Plano.
- Haga clic en el icono Girar en la barra de herramientas.
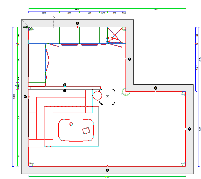
- En el plano se muestra con colores como este y el la herramienta girar está en el centro del plano.
- Haga clic izquierdo y mantenga presionada una flecha de rotación y arrastre para rotar.
- A medida que gira, el giro se muestra en líneas discontinuas rojas y, en la parte inferior izquierda de la pantalla, verá la cantidad de grados de rotación.
- Cuando haya completado la rotación, suelte el botón del ratón. El piso estará en la posición deseada.
Para girar el plano de planta un número determinado de grados
- Haga clic en el icono de modo Definición de pieza en la barra de herramientas:
- Haga clic en la ventana Plano.
- Haga clic en el icono Girar en la barra de herramientas.
- La herramienta girar está ahora en el centro del plano.
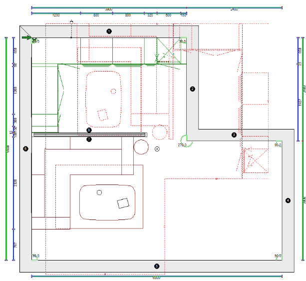
- Haga doble clic en el círculo en el centro de la herramienta de rotación. Esto abrirá la ventana Girar objetos marcados.
- Introduzca un valor en el cuadro Girar objetos marcados y haga clic OK. Verá que el plano del piso se mueve según el número de grados ingresados.
Nota: Los números positivos rotarán el plan en el sentido de las agujas del reloj, los números negativos lo rotarán en el sentido contrario a las agujas del reloj. - Hacer clic OK para cerrar la ventana.
Artículos relacionados