Es muy común empezar a dibujar una habitación y darnos cuenta de que las dimensiones no son perfectas. No es necesario volver a empezar desde el principio, a partir de la versión 12.4a3 Winner ofrece las siguientes posibilidades para modificar dimensiones:
Ajuste de ángulos
- Seleccionar modo definición de pieza :
- Haga clic en la pared, después marca el ángulo que desea cambiar.
-
Haga clic derecho y seleccione Propiedades de la pared, donde verá una vista previa de la forma de la habitación.
El código de colores de la vista previa de la sala es el siguiente:
- La pared actual (seleccionada) es violeta.
- Las paredes antiguas están indicadas por una línea de puntos gris.
- Las paredes que cambian por la nueva forma de la habitación son negras.
- Las paredes que no cambian se muestran como líneas grises.
-
Elija, seleccionando uno de los iconos a continuación, si desea
Mover paredes anteriores Mover las siguientes paredes, este es el valor predeterminado Ajuste solo la pared seleccionada; mantenga todas las demás paredes y ángulos.
- Introducir el nuevo ángulo y verá toda la habitación actualizada en la ventana de vista previa.
Nota: Aparecerá una varita mágica delante de la longitud de una pared calculada automáticamente.
- Si estás contento haz clic OK, si has cometido un error haz clic Restablecer forma.
- Una vez que haya hecho clic en Aceptar, verá que las longitudes y los ángulos de las paredes se habrán ajustado automáticamente.
Ajustar la longitud de las paredes
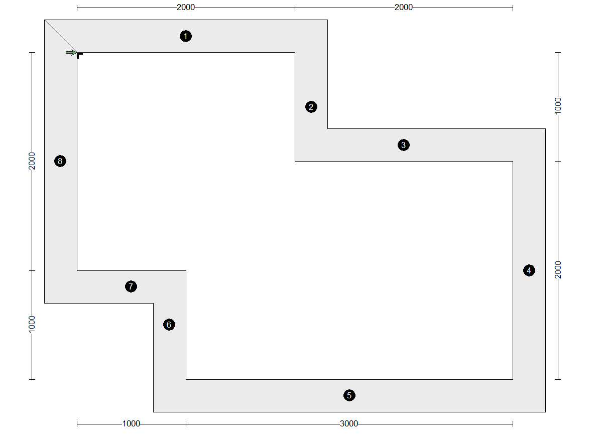
Aquí hay un ejemplo de un plano:
El cliente nos informa que algunas medidas son incorrectas:
- La pared 3 debe ser de 1 m
- Pared 4: 1,5 m
- Pared 5: 2m
- Pared 8: 1,5 m
Tenemos 4 paredes para modificar. He aquí cómo hacerlo de forma sencilla:
-
En Modo de definición de pieza.
-
Seleccione la primera pared a ajustar. En este ejemplo es W.los 3.
Botón derecho del ratón y seleccione Propiedades de la pared.
Nota: Recomendamos modificar tus paredes en el sentido de las agujas del reloj.
-
Elija, seleccionando uno de los iconos a continuación, si desea
Mover paredes anteriores. Si se cambia la longitud de la pared y no el ángulo, la única opción es desplazar paralelamente la pared anterior. Mover las siguientes paredes este es el valor predeterminado. Si se cambia la longitud de la pared, podrá alternar entre dos opciones. Uno donde se conserva el ángulo con el siguiente muro y otro donde se conserva el punto final del siguiente muro.
Ajuste solo la pared seleccionada; mantenga todas las demás paredes y ángulos. Cuando se selecciona, todas las paredes mantienen su ángulo y longitud, lo que puede resultar en la apertura de la habitación.
En este ejemplo lo dejaremos como predeterminado. Mueva las siguientes paredes.
-
cambie la Longitud de la pared . En este ejemplo, debería ser 1000 en lugar de 2000.
Nota: en los casos en los que haya más de una solución para la nueva habitación, Aparecerá un icono para alternar entre las dos formas de la habitación:
haga clic aquí para alternar entre las opciones disponibles = cambiar un ángulo o desplazamiento paralelo.
- Puede ver el cambio inmediatamente en la vista previa del plan.
-
Si estás contento haz clic OK, si has cometido un error haz clic Restablecer forma.
- Utilice el mismo método para modificar las otras paredes (4, 5 y 8).
Nota: Verá en el vídeo a continuación que no es necesario ajustar la pared 5 manualmente, ya que se ajusta automáticamente en función de los cambios realizados en la pared 4.