It is very common to start drawing a room and realise that the dimensions are not perfect. You do not need to start again from the beginning, from version 12.4a3 Winner offers the following possibilities to modify dimensions:
Adjusting angles
- Select room definition mode:
- Click on the wall, after the angle you would like to change.
-
Right-click and select Wall properties, where you will see a preview of the room shape.
The colour coding of the room preview is as follows:
- The current (selected) wall is purple.
- The old walls are indicated by a grey dotted line.
- Walls that are changed by the new room shape are black.
- Walls that are not changed are shown as grey lines.
-
Choose, by selecting one of the icons below, whether you want to
Move previous wall(s) Move next wall(s) this is the default Adjust only selected wall - keep all other walls and angles.
- Enter the new angle and you will see the whole room update in the preview window.
Note: a magic wand will appear before the length of an automatically calculated wall.
- If you are happy click OK, if you have made a mistake click Reset shape.
- Once you have clicked OK you will see that wall lengths and angles will have been automatically adjusted for you.
Adjusting wall lengths
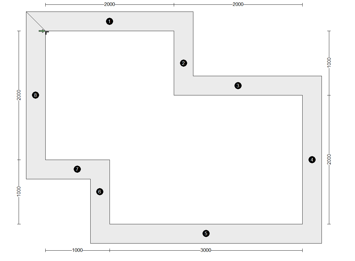
Here is an example of a plan:
The client informs us that some measurements are incorrect:
- Wall 3 must be 1m
- Wall 4: 1.5m
- Wall 5: 2m
- Wall 8: 1.5m
We have 4 walls to modify. Here's how to keep it simple:
-
In Room definition mode.
-
Select the first wall to be adjusted. In this example it is Wall 3.
Right click and select Wall properties.
Note: We recommend to modify your walls clockwise.
-
Choose, by selecting one of the icons below, whether you want to
Move previous wall(s). If wall length is changed and not the angle the only option is to parallell shift the previous wall. Move next wall(s) this is the default. If wall length is changed you will be able to toggle between two options. One where the angle to the next wall is preserved and one where the end point of the next wall is preserved.
Adjust only selected wall - keep all other walls and angles. When selected, all walls keep their angle and lengths, this may result in opening the room.
In this example we will leave it as the default Move next wall(s).
-
Change the wall Length. In this example it should be 1000 instead of 2000.
Note: in cases where there is more than one solution for the new room shape a toggle between the room shapes icon will appear:
click this to toggle between the options available = change an angle or parallel shift.
- You can see the change immediately in the plan preview.
-
If you are happy click OK, if you have made a mistake click Reset shape.
- Use the same method to modify the other walls (4, 5 and 8).
Note: You will see from the video below that there is no need to adjust wall 5 manually as it is automatically adjusted based on the changes made to wall 4.