In Winner wird das Wort Installationen für Schalter, Rohre und Steckdosen verwendet. Manchmal müssen Sie die Symbole an einer Insel oder in einer Wand mit Ecken oder einer Leiste anzeigen. Hierzu verwenden Sie einen Ansichtsschnitt.
Dieser Artikel enthält Anweisungen zur Platzierung eines Ansichtsschnitts und zum Hinzufügen des Installationsobjekts.
Platzierung eines Ansichtsschnitt
- Klicken Sie in der oberen linken Ecke auf das Symbol Raumdefinition:
-
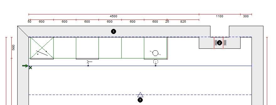
Da es für die nächsten Schritte hilfreich ist, die Küchenmöbel im Grundriss zu sehen, klicken Sie mit der rechten Maustaste auf den Grundriss und wählen Sie Zeige aus.
-
Wählen Sie die Option Raum mit Installationen und Unterschränken.
Hinweis: Um auch andere Möbel als die Unterschränke zu sehen: Wählen Sie im Menü Zeige die Option Benutzerdefiniert und klicken Sie im Bereich Objekte Sichtbarkeit auf die Schaltflächen Zwischen U-O und/oder Oberschränke nach Bedarf.
-
Zeichnen Sie einen Ansichtsschnitt im Grundriss:
Wie das geht, erfahren Sie im Artikel Ansichtsschnitte.
Beispiel 1: Wenn Sie eine Insel im Grundriss haben, zeichnen Sie den Schnitt in der Mitte und decken Sie die gesamte Länge ab:
Beispiel 2: Wenn Sie eine Leiste oder eine Wand mit Ecken haben, zeichnen Sie den Ansichtsschnitt gegenüber der Wand, nahe an der Wand und über die gesamte Länge:
- Klicken Sie auf das Symbol für das Auswahlwerkzeug
und dann auf die Linie des Ansichtschnitts. Nach der Auswahl ist der Ansichtsschnitt aktiv und im Grundriss gelb hinterlegt. Das bedeutet, dass Sie mit der rechten Maustaste verschiedene Optionen für den Ansichtsschnitt auswählen können. Weitere Einzelheiten zu den verfügbaren Optionen finden Sie im Artikel Ansichtsschnitte.
Einfügen von Installationen an einem Ansichtsschnitt
- Wenn die Schnittlinie aktiv ist (siehe Punkt 5 oben), klicken Sie mit der rechten Maustaste.
- Wählen Sie Installationssymbol einfügen.
- Wählen Sie die gewünschte Installation aus und klicken Sie OK.
Tipp: Für eine schnelle Suche sind die Installationssymbole im linken Bereich des Fensters Objekt wählen in verschiedene Gruppen eingeteilt: Elektrisch, Sanitär, Gas, Nummern, Buchstaben und Diverse.
Klicken Sie auf die Schaltfläche "Suchen" auf der rechten Seite, um das gewünschte Symbol zu finden, indem Sie den Installationstyp in das Suchfeld eingeben, z. B. rechteckiges Loch. Winner zeigt Ihnen alle Symbole, die den Suchtext in der Beschreibung enthalten.
-
Sie können die Position des Objekts im Fenster Platzierung von dem Objekt wählen einstellen. Sie können die verschiedenen Werte eines Parameters ändern, indem Sie auf seine Zeile klicken und den Wert in das Feld am unteren Rand des Fensters eingeben.
- Klicken Sie auf OK. Das Symbol sehen Sie anschließend im Grundriss und/oder in der Ansicht.
Ähnliche Artikel
Wie lege ich fest, ab welchem Bezugspunkt die Einbaumaße beginnen?
Wie kann ich Bemaßungen zu Ansichtsschnitten im Grundriss hinzufügen?