In Winner sind Ansichtsschnitte ein Hilfsmittel, um spezifischere Ansichten im Fenster Ansicht darzustellen wie z.B. Kücheninseln. Mit Hilfe von Ansichtsschnitten können Sie Ansichten von Inseln oder freistehenden Objekten erstellen und ausdrucken, die nicht an einer Wand platziert sind. Zu Beginn zeigt das Fenster nur die Ansichten der einzelnen gezeichneten Wände an.
So zeichnen Sie einen Ansichtsschnitt
Auf Alternativebene im Raumdefinitionsmodus oder Möblierungsmodus:
- Klicken Sie auf das Symbol Schnitt für Ansicht zeichnen/ändern in der Symbolleiste.
- Vergewissern Sie sich, dass das Symbol Zeichenstift zum Freihandzeichnen ausgewählt ist
- Klicken Sie zuerst im Grundrissfenster mit der linken Maustaste an die Stelle, an der der Ansichtsschnitt beginnen soll.
- Klicken Sie erneut mit der linken Maustaste auf die Stelle, an der er enden soll.
Die Ansichtsschnitt wird als durchgehende Linie dargestellt, wobei gepunktete Linien gleichmäßig auf beiden Seiten platziert sind.
Die gepunkteten Linien dienen als Referenz der Ansichtsschnittdistanz. Dadurch wird ermittelt, wie viel von der Fläche im Schnittbereich liegt, der dann in der Ansicht dargestellt wird. Wenn der Schnittabstand sehr kurz ist, werden Schränke möglicherweise nicht in der Wandansicht dargestellt. Dies kann in den Eigenschaften des Ansichtsschnitt geändert werden.
Das Dreieck gibt an, von welcher Seite aus die Ansicht dargestellt wird. Die Seite mit dem Dreieck, die dem Ansichtsschnitt zugewandt ist, wird in der Wandansicht dargestellt.
Der Ansichtsschnitt erhält automatisch eine Nummernreferenz, ähnlich wie jede Wand. Dies kann in den Eigenschaften des Ansichtsschnitt geändert werden.
Hinweis: Nach dem Zeichnen kann die durchgezogene Linie des Ansichtsschnitt angeklickt werden, und der ausgewählte Ansichtsschnitt wird in der Wandansicht angezeigt.
Die Richtung eines Ansichtsschnitts ändern
Auf Alternativebene im Raumdefinitionsmodus oder Möblierungsmodus:
- Klicken Sie auf das Symbol Schnitt für Ansicht zeichnen/ändern in der Symbolleiste.
- Klicken Sie auf das Symbol Werkzeug auswählen.
- Klicken Sie mit der linken Maustaste auf den Ansichtsschnitt, um diesen auszuwählen.
- Klicken Sie mit der rechten Maustaste und wählen Sie die Option Richtung wechseln.
Bearbeiten eines Ansichtsschnitts
Auf Alternativebene im Raumdefinitionsmodus oder Möblierungsmodus:
- Klicken Sie auf das Symbol Schnitt für Ansicht zeichnen/ändern in der Symbolleiste.
- Klicken Sie auf das Symbol Werkzeug auswählen.
- Klicken Sie mit der linken Maustaste auf den Ansichtsschnitt, um ihn auszuwählen.
- Wenn Sie mit der rechten Maustaste klicken, erhalten Sie eine Auswahl an Optionen zur Bearbeitung des Ansichtsschnitts.
-
-
Maßlinien generieren erzeugt Maße von Artikeln innerhalb des Schnittabstands des Ansichtsschnittes im Grundrissfenster.
- Über Parallel verschieben können Sie einen bestimmten Abstand eingeben, um den Ansichtsschnitt zu verschieben.
Die Richtung, in die die Linie verschoben wird, wird über + oder - geregelt
-
Richtung wechseln tauscht die Blickrichtung, aus der Sie den Schnitt betrachten.
-
Eigenschaften öffnet die Eigenschaften des Ansichtsschnitts Hier können Sie folgende Optionen vornehmen:
- Länge: Definiert die Länge des Ansichtsschnitts.
- Abstand vor Schnitt: Definiert den Abstand zum Ansichtsschnitt von der Blickrichtung aus (dargestellt durch eine gestrichelte blaue Linie).
- Abstand hinter Schnitt: Definiert den Abstand zum Ansichtsschnitt zur gegenüberliegende Seite der Blickrichtung (dargestellt durch eine gestrichelte blaue Linie).
- Höhe: Definiert die Höhe des Anzeigebereichs.
- Abstand vom Boden: Definiert den Abstand des Ansichtsschnittes vom Boden.
Hinweis: Berührt der Ansichtsschnitt eine Außenwand und Sie stellen einen Abstand vom Boden ein, der größer als der Wert für den Planungspfeil ist, wird der Ansichtsschnitt nicht mehr im Ansichtsfenster dargestellt.
- Name: Definiert den Namen des Ansichtsschnittes. Der Name wird automatisch vergeben und folgt der Wandnummerierung in der Reihenfolge, in der Sie die Ansichtsschnitte platziert haben. Um dies zu ändern, deaktivieren Sie einfach das Kontrollkästchen.
- Prüfe Überschneidungen mit Wänden beim Vergeben der automatischen Positionsnummern: Wenn der Ansichtsschnitt eine Wand schneidet und dieses Kontrollkästchen aktiviert ist (was die Standardeinstellung ist), verwendet Winner den Ansichtsschnitt als Wand zur Berechnung der Schranknummern. Wenn Sie diese Funktion deaktivieren, werden Schranknummerierungen nicht von Positionsänderungen des Ansichtsschnittes beeinflusst.
Der Zweck dieses Kontrollkästchens besteht darin, dass die Nummerierung der Schränke zuerst entlang der Wand folgt, wenn dann ein Ansichtsschnitt die Wand berührt, nummeriert Winner die Schränke entlang beider Seiten des Ansichtsschnittes und anschließend wieder die Schränke der berührten Wand.
-
Maßlinien generieren erzeugt Maße von Artikeln innerhalb des Schnittabstands des Ansichtsschnittes im Grundrissfenster.
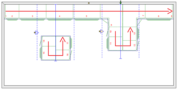
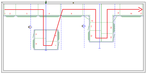
| Wenn das Kontrollkästchen aktiviert ist (Standardeinstellung) | Wenn das Kontrollkästchen deaktiviert ist |
| Die rote Linie zeigt die Richtung an, der Winner folgt, um die Schränke automatisch zu nummerieren. Im linken Diagramm wird der Ansichtsschnitt als Wand behandelt. Im rechten Diagramm werden zuerst die Schränke entlang der Außenwand nummeriert, dann die Ansichtsschnitte. | |
Drucken eines Ansichtsschnitts
Auf Alternativebene im Raumdefinitionsmodus oder Möblierungsmodus:
- Klicken Sie auf die durchgezogene Linie des Ansichtschnitts, um sie auszuwählen.
- In der Wandansicht werden Ihnen nun die Elemente angezeigt, auf die der Pfeil zeigt.
Hinweis: Um die Richtung des Ansichtsschnitts zu ändern, befolgen Sie die Schritte im oben genannten Abschnitt.
- Wählen Sie das Fenster Wandansicht aus und wählen Sie mit der rechten Maustauste die Option Exportieren oder Ansicht drucken.
Hinweis: Informationen zum Einbinden von Ansichtsschnitten in Batchdrucke finden Sie unter: So fügen Sie einem Batchdruck Ansichtsschnitte hinzu
Ähnliche Artikel
Wie kann ich Bemaßungen zu Ansichtsschnitten im Grundriss hinzufügen?
Wie kann ich Installationen an einen Ansichtsschnitt anhängen?