I Winner, er vægafsnit et værktøj til at give flere opstalter i Opstalt vinduet. Snitvisninger kan bruges til at lave højdeudskrifter af en ø eller elementer, der ikke er placeret langs en væg. Til at begynde med vil vinduet kun vise opstalter af hver tegnet væg.
Tegn et vægafsnit
På Alternativ niveau, i Rumdefinering eller Møblering:
- Klik på Tegn/skift vægafsnit ikonet i værktøjslinjen.
- Sørg for, at Tegneværktøj ikonet er valgt
- I Plantegning vinduet, skal du først venstre klikke hvor du vil have vægafsnittet til at starte.
-
Venstre klik igen hvor det slutter.
Vægafsnittet vil fremstå som en linje med stiplede linjer ligeligt placeret på begge sider.
De stiplede linjer er betegnelser for Klippeafstand. Dette identificerer, hvor meget af området, der er i vægafsnittet, som så vil blive vist i opstalten. Hvis klippeafstanden er meget kort, vises skabene muligvis ikke på opstalten. Dette kan ændres i egenskaberne for vægafsnit.
Trekanten angiver, hvilken vej opstalten vender. Den side med trekanten, der vender mod vægafsnittet, er det, der vil blive præsenteret i opstalten.
Vægafsnittet vil automatisk have en nummerreference ligesom hver væg. Dette kan ændres i egenskaberne for vægafsnit.
Bemærk: Når den er tegnet, kan man klikke på den ubrudte linje, og det valgte vægafsnit vises i opstalten.
Skift retningen på et vægafsnit
På Alternativ niveau, i Rumdefinering eller Møblering:
- Klik på Tegn/skift vægafsnit ikonet i værktøjslinjen.
- Klik på Pegeredskab ikonet.
- Venstre-klik på vægafsnittet for at vælge det.
- Højreklik og vælg Skift retning.
Rediger et vægafsnit
På Alternativ niveau, i Rumdefinering eller Møblering:
- Klik på Tegn/skift vægafsnit ikonet i værktøjslinjen.
- Klik på Pegeredskab ikonet.
- Venstre-klik på vægafsnittet for at vælge det.
- Højreklik vil vise et udvalg af muligheder for at redigere vægafsnittet.
-
-
Tilføj mål vil generere mål af elementer inden for klippeafstanden af vægafsnittet i plantegningen.
-
Parallelforskydning vil give dig mulighed for at indtaste en bestemt afstand for at flytte vægafsnittet.
Retningen, som linjen bevæges i, indstilles via +eller -
-
Skift retning vil skifte retningen på visningen i opstalten.
-
Egenskaber vil åbne egenskaberne for vægafsnittet. Her kan du ændre:
- Længde: Definerer længden af vægsfsnittet.
- Klippeafstand foran: Definerer afstanden mellem vægafsnittet fra den forreste klipning (vist med en stiplet blå linje).
- Klippeafstand bagerst: Definerer afstanden mellem vægafsnittet fra den bagerste klipningen (vist med en stiplet blå linje).
- Højde: Definerer højden af visningsområdet.
- Afstand fra gulv: Definerer afstanden mellem vægafsnittet og gulvet.
Bemærk: Hvis vægafsnittet rører en ydervæg, og du indstiller en afstand fra gulvet, som er højere end markørens højde, vil vægafsnittet ikke længere blive vist i opstaltssvinduet.
- Navn: Definerer navnet på vægafsnittet. Navnet tildeles automatisk og følger efter vægnummereringen i den rækkefølge, du placerede vægafsnittene. For at ændre det skal du bare fjerne markeringen i afkrydsningsfeltet.
- Kontroller for krydssende vægge under automatisk positionsnummerering af skabe: Hvis vægafsnittet skærer væggen, og dette afkrydsningsfelt er markeret (hvilket er standardindstillingen), vil Winner bruge vægafsnittet som en væg til at beregne skabsnumrene. Hvis du fjerner fluebenet for dette flag, vil skabsnumrene ikke blive påvirket af ændringer i vægafsnittets position.
Formålet med dette afkrydsningsfelt, når det er afkrydset, er, at nummereringen af skabene først følger langs væggen, så hvis et vægafsnit rører væggen, vil Winner nummerere skabene langs den ene side af vægafsnittet, derefter på den anden side af vægafsnittet og fortsæt derefter langs væggen igen.
-
Tilføj mål vil generere mål af elementer inden for klippeafstanden af vægafsnittet i plantegningen.
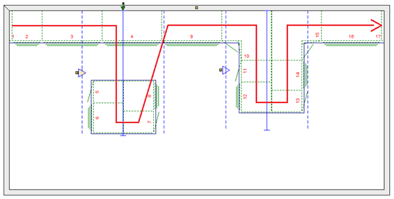
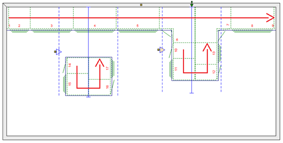
| Når afkrydsningsfeltet er markeret (standard) | Når afkrydsningsfeltet er fjernet |
| Den røde linje angiver den retning, Winner vil følge for automatisk at nummerere skabene. I det venstre diagram behandler det vægafsnittet som en væg. I det højre diagram nummereres skabene langs ydervæggen først og derefter vægafsnittet. | |
Udskriv et snitbillede
På Alternativ niveau, i Rumdefinering eller Møblering:
- Klik på den fuldt optrukne linje i snitvisningen for at vælge den.
- Højdevisningen vil nu vise dig de elementer, som pilen peger på.
Bemærk: for at ændre retningen af snitbilledet se trinene i ovennævnte afsnit.
- Vælg Højde vindue og Højreklik vælg indstillingen Eksport eller Udskriv højde.
Bemærk: For at inkludere snitbilleder i batchudskrifter se: Sådan tilføjer du snitbilleder til et batchudskrift
Relaterede artikler
Hvordan kan jeg tilføje mål til vægafsnit i plantegningen?