One of the views Winner offers is the floor plan or room plan. It shows the walls, units, sloping ceilings, windows, doors and other installations in a top-down perspective. The other views are the Perspective (see also, How to move around the perspective) and the Elevation (see also, Window setup: Plan/Perspective/Elevation).
This article covers how to rotate the floor plan freely and how to rotate it by a set number of degrees.
To rotate the floor plan freely
- Click on the Room definition mode icon in the Toolbar:
- Click in the Plan window.
- Click the Rotate icon in the Toolbar.
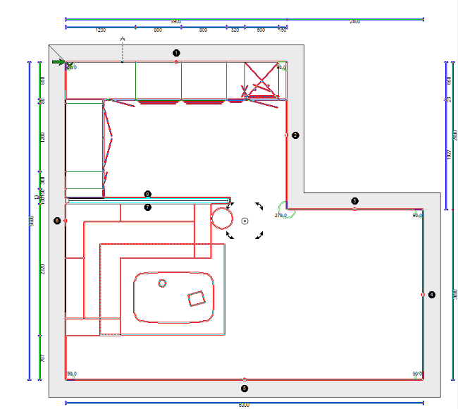
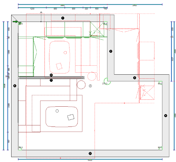
- The plan is shown with colours like this and the rotate tool is in the centre of the plan.
- Left-click and hold on a rotation arrow and drag to rotate.
- As you rotate the turn is shown in red dashed lines and at the bottom left on your screen, you will see the number of degrees of rotation.
- When you have completed the rotation, release the mouse button. The floor will be in the desired position.
To rotate the floor plan by a set number of degrees
- Click on the Room definition mode icon in the Toolbar:
- Click in the Plan window.
- Click the Rotate icon in the Toolbar.
- The rotate tool is now in the centre of the plan.
- Double-click the circle in the centre of the rotate tool. This will open the Rotate selection window.
- Enter a value in the Rotate selection box and click Apply. You will see the floor plan move by the number of degrees entered.
Note: Positive numbers will rotate the plan clockwise, negative numbers will rotate it anticlockwise. - Click OK to close the window.
Related articles