Det är väldigt vanligt att man börjar rita ett rum och inser att måtten inte är perfekta. Du behöver inte börja om från början, från version 12.4a3 erbjuder Winner följande möjligheter att ändra dimensioner:
Justering av vinklar
- Välj rumsdefinition läge:
- Klicka på väggen, efter vinkeln du vill ändra.
-
Högerklicka och välj Väggegenskaper, där du kommer att se en förhandsvisning av rummets form.
Färgkodningen för förhandsvisningen av rummet är som följer:
- Den nuvarande (valda) väggen är lila.
– De gamla väggarna är markerade med en grå streckad linje.
– Väggar som förändras av den nya rumsformen är svarta.
- Väggar som inte ändras visas som grå linjer.
-
Välj, genom att välja en av ikonerna nedan, om du vill
Flytta tidigare vägg(ar) Flytta nästa vägg(ar) detta är standard Justera endast vald vägg - behåll alla andra väggar och vinklar.
- Lägg in den nya vinkeln och du kommer att se hela rummets uppdatering i förhandsgranskningsfönstret.
Notera: en trollstav kommer att dyka upp före längden på en automatiskt beräknad vägg.
- Om du är nöjd klicka OK, om du har gjort ett misstag klicka Återställ form.
- När du har klickat på OK ser du att vägglängder och vinklar automatiskt har justerats åt dig.
Justering av vägglängder
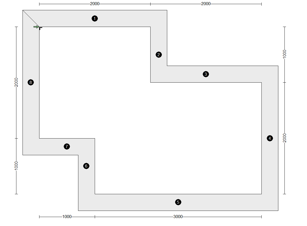
Här är ett exempel på en planritning:
Kunden informerar oss om att vissa mått är felaktiga:
- Vägg 3 ska vara 1m
- Vägg 4: 1,5m
- Vägg 5: 2m
- Vägg 8: 1,5m
Vi har 4 väggar att modifiera. Så här gör du det enkelt:
-
I Rumsdefinitionsläge.
-
Välj den första väggen som ska justeras. I det här exemplet är det Walla 3.
Högerklicka och välj Väggegenskaper.
Notera: Vi rekommenderar att modifiera dina väggar medurs.
-
Välj, genom att välja en av ikonerna nedan, om du vill
Flytta tidigare vägg(ar). Om vägglängden ändras och inte vinkeln är det enda alternativet att parallellförskjuta föregående vägg. Flytta nästa vägg(ar) detta är standard. Om vägglängden ändras kommer du att kunna växla mellan två alternativ. Där vinkeln till nästa vägg bevaras och där ändpunkten för nästa vägg bevaras.
Justera endast vald vägg - behåll alla andra väggar och vinklar. När markerat, behåller alla väggar sin vinkel och längder, detta kan leda till att rummet öppnas.
I det här exemplet lämnar vi det som standard Flytta nästa vägg(ar).
-
Byt väggens Längd. I det här exemplet ska det vara 1000 istället för 2000.
Notera: i de fall det finns mer än en lösning för den nya rumsformen växla mellan rumsformerna ikonen kommer att visas:
klicka här för att växla mellan de tillgängliga alternativen = ändra en vinkel eller parallellförskjutning.
- Du kan se ändringen direkt i planförhandsgranskningen.
-
Om du är nöjd klicka OK, om du har gjort ett misstag klicka Återställ form.
- Använd samma metod för att modifiera de andra väggarna (4, 5 och 8).
Notera: Du kommer att se från videon nedan att det inte finns något behov av att justera vägg 5 manuellt eftersom den justeras automatiskt baserat på ändringarna som gjorts på vägg 4.