I Winner, är egendefineradesvyer ett verktyg för att ge fler elevationsvyer. Egendefineradevyer kan användas för att skapa elevationsutskrifter av en köksö eller föremål som inte är placerade längs en vägg. Inledningsvis kommer fönstret endast att visa elevationer av varje ritad vägg.
Rita en egendefinerad vy
På Alternativ nivå, i Rumsdefinitionsläget eller Möbelläget:
- Klicka på Rita/ändra egendefinerad vy ikonen i verktygsfältet.
- Se till att Ritverktygs ikonen är vald
- I Planritningen, vänster klicka där du vill att sektionsvyn ska börja.
-
Vänster klicka igen där den ska sluta.
Vyn kommer att visas som en linje, med prickade linjer placerade på båda sidor.
De streckade linjerna är betecknare för distans. Detta identifierar hur mycket av området som är i sektionsvyzonen, som sedan kommer att visas på elevationen. Om avståndet är mycket kort kan det hända att skåp inte syns på elevationen. Detta kan ändras i egenskaperna för den egendefinerade vyn.
Triangeln anger åt vilket håll bilden är vänd. Den sida med triangeln som är vänd mot sektionsvyn är vad som kommer att presenteras på elevationsvyn.
Sektionsvyn kommer automatiskt att ha en nummerreferens som varje vägg. Detta kan ändras i egenskaperna för den egendefinerade vyn.
Notera: När den har ritats kan den heldragna sektionslinjen klickas på och den valda sektionsvyn visas i elevationsfönstret.
Ändra riktningen
På Alternativ nivå, i Rumsdefinitionsläget eller Möbelläget:
- Klicka på Rita/ändra egendefinerad vy ikonen i verktygsfältet.
- Klicka på Den svarta pilen.
- Vänsterklicka på den egendefinerade vyn för att välja den.
- Högerklicka och välj Byt riktning.
Redigera
På Alternativ nivå, i Rumsdefinitionsläget eller Möbelläget:
- Klicka på Rita/ändra egendefinerad vy ikonen i verktygsfältet.
- Klicka på Den svarta pilen.
- Vänsterklicka på den egendefinerade vyn för att välja den.
- Högerklicka för att visa ett urval av alternativ för att redigera.
-
-
Skapa måt kommer att generera mätningar av enheter inom klippavståndet för snittvyn i planfönstret.
-
Parallellförskjutning gör att du kan skriva in ett specifikt avstånd för att flytta den egendefinerade vyn.
Riktningen i vilken linjen flyttas ställs in via +eller -
-
Byt riktning kommer att byta riktning på ögat.
-
Egenskaper kommer att öppna egenskaperna. Här kan du ändra:
- Längd: Definierar längden på väggsektionen.
- Kapavstånd fram: Definierar avståndet för snittvyn från den främre klippningen (visas med en streckad blå linje).
- Kapavstånd bak: Definierar avståndet för snittvyn från den bakre urklippningen (visas med en streckad blå linje).
- Höjd: Definierar höjden på visningsområdet.
- Avstånd från golv: Definierar avståndet för sektionsvyn från golvet.
ONS! Om snittvyn vidrör en yttervägg och du ställer in ett avstånd från golvet som är högre än markörhöjden, kommer snittvyn inte längre att visas i elevationsvyn.
- Namn: Definierar namnet på den egendefinerade vyn. Namnet tilldelas automatiskt och följer på väggnumreringen i den ordning du placerade snittvyn/vyerna. För att ändra det bara avmarkera kryssrutan.
- Kontrollera om det finns korsningar med väggar vid automatisk positionsnumrering av skåp: Om sektionsvyn skär väggen och den här kryssrutan är markerad (vilket är standardinställningen) kommer Winner att använda sektionsvyn som en vägg för att beräkna antalet skåp. Om du avmarkerar denna, kommer skåpnummer inte att påverkas av några ändringar av positionen för snittvyn.
Syftet med den här kryssrutan när den är markerad är att numreringen av skåpen först följer med väggen, sedan om en sektionsvy vidrör väggen kommer Winner att numrera skåpen längs ena sidan av sektionsvyn, sedan på den andra sidan av sektionen. se och fortsätt sedan längs väggen igen.
-
Skapa måt kommer att generera mätningar av enheter inom klippavståndet för snittvyn i planfönstret.
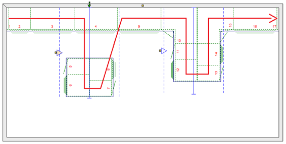
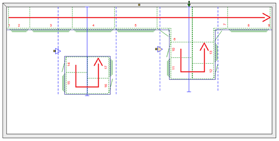
| När kryssrutan är markerad (standard) | När kryssrutan är avmarkerad |
| Den röda linjen anger riktningen Winner kommer att följa för att automatiskt numrera skåpen. I det vänstra diagrammet behandlas snittvyn som en vägg. I det högra diagrammet numreras skåpen längs ytterväggen först och sedan de egendefinerade vyerna. | |
Skriv ut en egendefineradvy
På Alternativ nivå, i Rumsdefinitionsläget eller Möbelläget:
- Klicka på den heldragna linjen för att markera den.
- Elevationsvyn visar nu objekten som pilen pekar på.
Notera: för att ändra riktningen för en egendefineradvyn se stegen i ovan nämnda avsnitt.
- Välj Elevation fönster och Högerklicka välj alternativet Exportera eller Skriv ut elevation.
Notera: För att inkludera egendefineradevyer i batchutskrifter se: Hur man lägger till egendefinerade vyer till ett batchutskrift
Relaterade artiklar
Hur kan jag lägga till åtgärder till min egendefinerade vy i planritningen?
Hur kan jag lägga till installationer till en egendefinierad vy?
Hur man lägger till egendefinerade vyer till en batchutskriften