Uma das vistas Winner oferece é a planta baixa ou a planta do quarto. Ele mostra as paredes, unidades, tetos inclinados, janelas, portas e outras instalações numa perspetiva de cima para baixo. As outras visões são a Perspetiva (veja também, Como se mover em torno da perspetiva) e a Elevação (ver também, Configuração da janela: Plano/Perspetiva/Elevação).
Este artigo abrange como girar a planta baixa livremente e como girá-lo por um número definido de graus.
Para girar a planta baixa livremente
- Clique no ícone Definição sala de modo na barra de ferramentas:
- Clique na janela Planta.
- Clique no ícone Girar na barra de ferramentas.
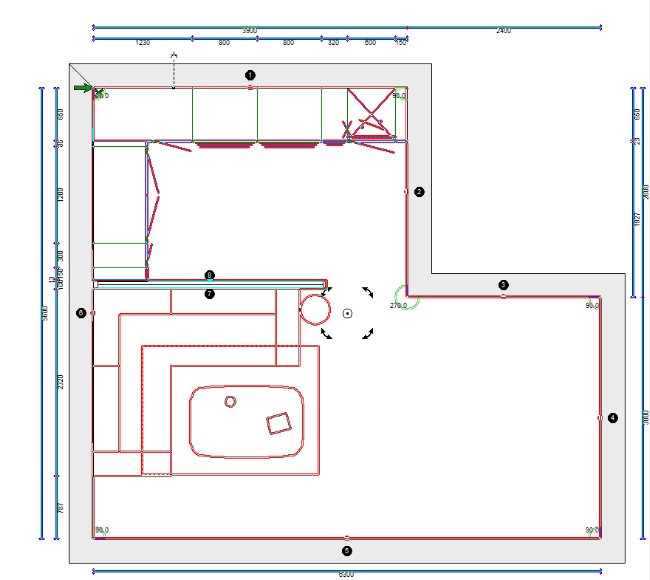
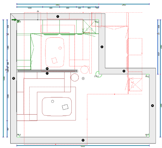
- A planta é mostrada com cores como esta e o girar ferramenta está no centro do plano.
- Clique com o botão esquerdo do rato e segure uma seta de rotação e arraste para girar.
- À medida que gira, a curva é mostrada em linhas tracejadas vermelhas e no canto inferior esquerdo da tela, verá o número de graus de rotação.
- Quando tiver completado a rotação, solte o botão do rato. O piso estará na posição desejada.
Para girar a planta baixa num número definido de graus
- Clique no ícone Definição sala de modo na barra de ferramentas:
- Clique na janela Planta.
- Clique no ícone Girar na barra de ferramentas.
- A ferramenta girar está agora no centro do plano.
- Clique duas vezes no círculo no centro da ferramenta de rotação. Isso abrirá a janela Girar seleção.
- Insira um valor no Girar seleção caixa e clique em Aplicar. Verá a planta baixa se mover conforme o número de graus inseridos.
Observação: Números positivos irão girar o plano no sentido horário, números negativos irão girá-lo no sentido anti-horário. - Clique em OK para fechar a janela.
Artigos relacionados