É muito comum começar a desenhar uma sala e perceber que as dimensões não são perfeitas. Você não precisa começar de novo desde o início, a partir da versão 12.4a3 Winner oferece as seguintes possibilidades para modificar dimensões:
Ajustando ângulos
- Selecione o Modo de definição de sala:
- Clique na parede, depois do ângulo que você gostaria de mudar.
-
Clique com o botão direito do mouse e selecione Propriedades da Parede onde você verá uma visualização da forma da sala.
O código de cores da visualização da sala é o seguinte:
- A parede atual (selecionada) é roxa.
- As paredes antigas são indicadas por uma linha pontilhada cinzenta.
- As paredes que são alteradas pelo novo formato da sala são pretas.
- As paredes que não são alteradas são mostradas como linhas cinzentas.
-
Escolha, selecionando um dos ícones abaixo, se deseja que
A mudança afetará a(s) parede(s) anterior(es) A mudança afetará a(s) próxima(s) parede(s), este é o padrão Ajustar apenas a parede selecionada - manter todas as outras paredes e ângulos.
- Digite o novo ângulo e você verá toda a atualização da sala na janela de visualização.
Nota: uma varinha mágica aparecerá antes do comprimento de uma parede calculada automaticamente.
- Se você está feliz clique OK, se você cometeu um erro, clique em Redefinir forma.
- Depois de clicar em OK, você verá que os comprimentos e ângulos da parede terão sido ajustados automaticamente para você.
Ajuste do comprimento da parede
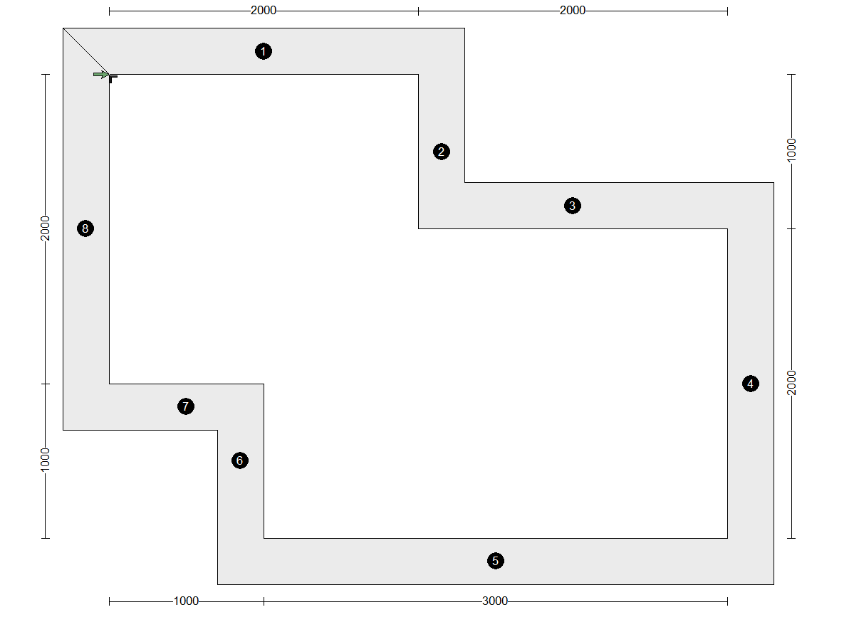
Aqui está um exemplo de um plano:
O cliente nos informa que algumas medições estão incorretas:
- A parede 3 deve ser de 1m
- Parede 4: 1.5m
- Parede 5: 2m
- Parede 8: 1.5m
Temos 4 paredes para modificar. Veja como simplificar:
-
Em Modo de definição de sala.
-
Selecione a primeira parede a ser ajustada. Neste exemplo é a Parede 3.
Clique com o botão direito e selecione Propriedades da Parede.
Nota: Recomendamos que modifique suas paredes no sentido horário.
-
Escolha, selecionando um dos ícones abaixo, se deseja que
A mudança afetará a(s) parede(s) anterior(es). Se o comprimento da parede for alterado e o ângulo permanecer o mesmo, a única opção é deslocar paralelamente a parede anterior. A mudança afetará a(s) próxima(s) parede(s) este é o padrão. Se o comprimento da parede for alterado, você poderá alternar entre duas opções. Uma onde o ângulo para a próxima parede é preservado e outra onde o ponto final da próxima parede é preservado.
Ajustar apenas a parede selecionada - manter todas as outras paredes e ângulos. Quando selecionada, todas as paredes mantêm seu ângulo e comprimentos, isso pode resultar na abertura da sala.
Neste exemplo, vamos deixá-lo como o padrão: A mudança afetará a(s) próxima(s) parede(s).
-
Mudar o comprimentoda parede. Neste exemplo, deve ser 1000 em vez de 2000.
Nota: nos casos em que há mais de uma solução para a nova sala, o ícone de alternar entre as formas da sala aparecerá:
Clique nisso para alternar entre as opções disponíveis = Alterar um ângulo ou deslocamento paralelo.
- Você pode ver a alteração imediatamente na visualização do plano.
-
Se você está feliz clique OK, se você cometeu um erro, clique Redefinir forma.
- Utilizar o mesmo método para modificar as demais paredes (4, 5 e 8).
Nota: Você verá no vídeo abaixo que não há necessidade de ajustar a parede 5 manualmente, pois ela é ajustada automaticamente com base nas alterações feitas na parede 4.