Dentro do Winner, as vistas seccionais são uma ferramenta para fornecer mais alçados na janela Alçado. As vistas de sector podem ser usadas para criar impressões de alçado de uma ilha ou itens que não são colocados ao longo de uma parede. Inicialmente, a janela mostrará apenas os alçados de cada parede desenhada.
Desenhando uma vista seccional
No nível de Alternativa , em Modo definição sala ou Modo mobília:
- Clique no ícone Desenhar/alterar sector na barra de ferramentas.
- Garanta que o ícone Ferramenta de desenho esteja clicado
- Na janela Planta , primeiro Clique com o botão esquerdo onde deseja que a vista seccional comece.
-
Clique com o botão esquerdo novamente onde terminará.
A vista seccional aparecerá como uma linha, com linhas pontilhadas igualmente colocadas em ambos os lados.
As linhas pontilhadas são significantes da distância do Recorte. Isso identifica quanto da área na zona da vista seccional será mostrada no Alçado. Se a distância de corte for muito curta, os móveis podem não aparecer no Alçado. Isto pode ser alterado nas propriedades da vista de sector.
O triângulo indica para que lado o alçado está voltado. O lado com o triângulo voltado para a vista em corte é o que será apresentado no Alçado.
A vista Seccional terá automaticamente uma referência numérica como cada parede. Isto pode ser alterado nas propriedades da vista de sector.
Nota: Uma vez desenhada, a linha sólida (central) da vista em corte pode ser clicada e a vista em corte selecionada será exibida na janela de elevação.
Alterar a direção de uma vista de sector
No nível de Alternativa , em Modo definição sala ou Modo mobília:
- Clique no ícone Desenhar/alterar sector na barra de ferramentas.
- Clique no ícone Ferramenta de apontar para desenho livre.
- Clique com o botão esquerdo na Vista seccional para selecioná-la.
- Clique com o botão direito e selecione Trocar direção.
Edite uma vista seccional
No nível de Alternativa, em Modo definição sala ou Modo mobília:
- Clique no ícone Desenhar/alterar sector na barra de ferramentas.
- Clique no ícone Ferramenta de apontar para desenho livre.
- Clique com o botão esquerdo na Vista seccional para selecioná-la.
- Clicar com o botão direito trará uma seleção de opções para editar a vista seccional.
-
-
Editar medidas irá gerar medidas de unidades na distância de corte da vista seccional na janela Planta.
-
Deslocamento paralelopermitirá que digite uma distância específica para mover a vista seccional.
A direção na qual a linha é movida é definida através do +ou -
-
Trocar direção irá trocar a direção do ponto de vista do Alçado.
-
Propriedades irá abrir as propriedades para sector. Aqui pode alterar o:
- Comprimento: Define o comprimento da secção da parede.
- Distância de corte em frente: Define a distância da vista seccional do recorte frontal (mostrado por uma linha azul tracejada).
- Distância de corte atrás: Define a distância da vista seccional do recorte traseiro (mostrado por uma linha azul tracejada).
- Altura: Define a altura da área de visualização.
- Distância do chão: Define a distância da vista seccional do piso.
Observação: Se a vista seccional estiver a tocar uma parede externa, defina uma distância do piso superior à altura do cursor, a vista seccional não será mais exibida na janela Alçado.
- Nome: Define o nome da vista seccional. O nome é atribuído automaticamente e segue a numeração da parede na ordem em que colocou a(s) vista(s) seccional(is). Para alterá-lo, basta desmarcar a caixa de seleção.
- Verifique se há intersecções com paredes durante a numeração automática da posição dos móveis: Se a vista seccional cruzar com a parede e esta caixa de seleção estiver marcada (sendo a configuração padrão), o Winner usará a vista seccional como uma parede para calcular os números dos móveis. Se desmarcar este sinalizador, os números dos móveis não serão afetados por nenhuma alteração na posição da vista seccional.
O objetivo desta caixa de seleção, quando marcada, é que a numeração dos móveis siga primeiro ao longo da parede, então se uma vista seccional tocar a parede, o Winner numerará os armários ao longo de um lado da vista seccional, depois no outro lado da vista seccional e depois continuará ao longo da parede novamente.
-
Editar medidas irá gerar medidas de unidades na distância de corte da vista seccional na janela Planta.
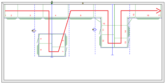
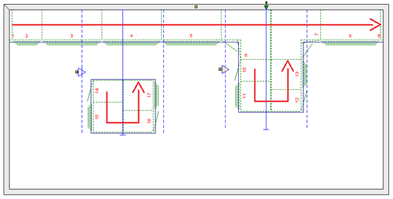
| Quando a caixa de seleção está marcada (o padrão) | Quando a caixa de seleção está desmarcada |
| A linha vermelha significa a direção que o Winner seguirá para numerar automaticamente os móveis. O diagrama da esquerda trata a vista seccional como uma parede. O diagrama da direita, numera os armários ao longo da parede externa primeiro e depois as vistas seccionais. | |
Imprimir uma vista seccional
No nível de Alternativa, em Modo definição sala ou Modo mobília:
- Clique na linha sólida da vista seccional para selecioná-la.
- A vista de alçado agora mostrará os itens para os quais a seta está apontando.
Nota: para alterar a direção da vista seccional, consulte as etapas na seção mencionada acima.
- Selecione a janela Alçado e clique com o botão direito Selecione a opção Alçado e então Exportar ou Imprimir alçado.
Nota: Para incluir vistas seccionais em impressões em lote, consulte: Como adicionar vistas seccionais a uma impressão em lote
Artigos relacionados
Como posso adicionar medidas a vistas seccionais na vista de planta?