I Winner, er snittvisninger et verktøy for å gi flere forhøyninger i Fronthøyde vindu. Utsnitt kan brukes til å lage høydeutskrifter av en øy eller gjenstander som ikke er plassert langs en vegg. Til å begynne med vil vinduet kun vise forhøyninger av hver tegnet vegg.
Tegner et snitt
På Alternativ nivå, i Romdefinisjon modus eller Møblering modus:
- Klikk på Tegn/endre snittvisning ikonet i verktøylinjen.
- Sørg for at Tegneverktøy ikonet klikkes
- I Plan vindu, først venstre klikk hvor du vil at snittvisningen skal starte.
-
Venstre klikk igjen hvor det vil ende.
Snittvisningen vil vises som en linje, med stiplede linjer likt plassert på begge sider.
De stiplede linjene er betegnelser for Klipping avstand. Dette identifiserer hvor mye av området som er i snittsonen, som da vises i forhøyningen. Hvis klippeavstanden er veldig kort, kan det hende at skap ikke vises på Fronthøyde. Dette kan endres i egenskapene for snittvisning.
De triangel angir hvilken vei høyden vender. Siden med trekanten som vender mot snittbildet er det som vil bli presentert på forsiden.
Snittvisningen vil automatisk ha en tallreferanse som hver vegg. Dette kan endres i egenskapene for snittvisning.
Merk: Når den er tegnet, kan den heltrukne linjen klikkes på og den valgte snittvisningen vises i høydevinduet.
Endre retningen på en snittvisning
På Alternativ nivå, i Romdefinisjon modus eller Møblering modus:
- Klikk på Tegn/endre snittvisning ikonet i verktøylinjen.
- Klikk på Velg Verktøy ikon.
- Venstreklikk på Utsnittsvisning for å velge den.
- Høyreklikk og velg Bytt retning.
Rediger en delvisning
På Alternativ nivå, i Romdefinisjon modus eller Møblering modus:
- Klikk på Tegn/endre snittvisning ikonet i verktøylinjen.
- Klikk på Velg Verktøy ikon.
- Venstreklikk på Utsnittsvisning for å velge den.
- Høyreklikk vil få opp et utvalg alternativer for å redigere seksjonsvisningen.
-
-
Lag tiltak vil generere målinger av enheter innenfor klippeavstanden til snittvisningen i Plan-vinduet.
-
Parallellforskyvning lar deg skrive inn en bestemt avstand for å flytte snittvisningen.
Retningen som linjen flyttes i, stilles inn via +eller -
-
Bytt retning vil bytte retningen til fronthøydesynspunktet.
-
Egenskaper vil åpne egenskapene for veggseksjonen. Her kan du endre:
- Lengde: Definerer lengden på veggseksjonen.
- Forreste klips dist: Definerer avstanden til snittvisningen fra frontklippet (vist med en stiplet blå linje).
- Bakre klipp dist: Definerer avstanden til snittvisningen fra den bakre klippingen (vist med en stiplet blå linje).
- Høyde: Definerer høyden på visningsområdet.
- Avstand fra gulv: Definerer avstanden til snittvisningen fra gulvet.
Merk: Hvis snittbildet berører en yttervegg og du angir en avstand fra gulvet som er høyere enn markørhøyden, vil snittbildet ikke lenger vises i høydevinduet.
- Navn: Definerer navnet på seksjonsvisningen. Navnet blir automatisk tildelt og følger av veggnummereringen i den rekkefølgen du plasserte snittvisningen(e). For å endre det bare fjern merket i boksen.
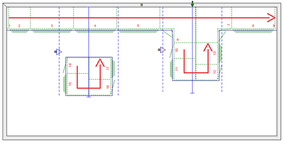
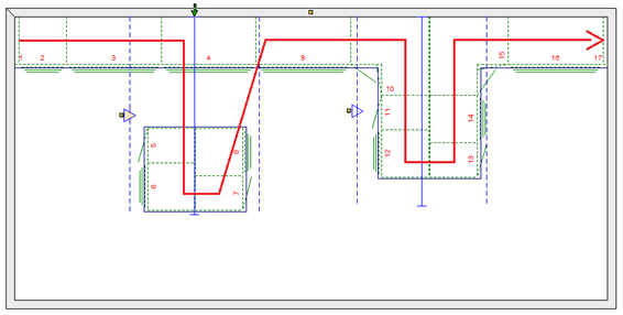
- Se etter kryss med vegger under automatisk posisjonsnummerering av skap: Hvis snittbildet skjærer veggen og denne avmerkingsboksen er merket (som er standardinnstillingen), vil Winner bruke snittbildet som en vegg for å beregne skaptall. Hvis du fjerner merket for dette flagget, vil ikke kabinettnummer bli påvirket av endringer i posisjonen til snittvisningen.
Hensikten med denne avkrysningsboksen når den er krysset av er at nummereringen av skapene først følger langs veggen, og hvis et snitt berører veggen, vil Winner nummerere skapene langs den ene siden av snittet, deretter på den andre siden av snittet. se og fortsett deretter langs veggen igjen.
-
Lag tiltak vil generere målinger av enheter innenfor klippeavstanden til snittvisningen i Plan-vinduet.
| Når avmerkingsboksen er merket (standard) | Når avkrysningsboksen er fjernet |
| Den røde linjen angir retningen Winner vil følge for å automatisk nummerere skapene. I diagrammet til venstre behandler det snittbildet som en vegg. I det høyre diagrammet nummereres skap langs ytterveggen først og deretter snittene. | |
Skriv ut et snitt
På Alternativ nivå, i Romdefinisjon modus eller Møblering modus:
- Klikk på den heltrukne linjen i snittvisningen for å velge den.
- Høydevisningen vil nå vise deg elementene som pilen peker på.
Merk: for å endre retningen på snittvisningen, se trinnene i avsnittet ovenfor. - Velg Høyde vindu og Høyreklikk velg alternativet Eksport eller Skriv ut høyde.
Merk: For å inkludere snittvisninger i batch-utskrifter, se: Hvordan legge til seksjonsvisninger til en batchutskrift
Relaterte artikler
Hvordan kan jeg legge til målinger i snittvisninger i planvisning?
Hvordan kan jeg feste installasjoner til en utsnitt visning?