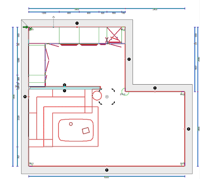
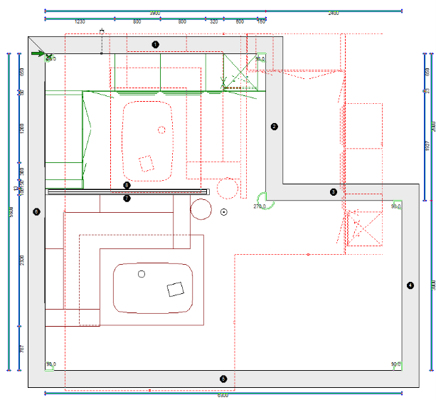
Een van de uitzichten Winner aanbiedingen is de plattegrond of kamerplattegrond. Het toont de wanden, units, schuine plafonds, ramen, deuren en andere installaties in een top-down perspectief. De andere weergaven zijn het Perspectief (zie ook Hoe u door het perspectief kunt bewegen) en de hoogte (zie ook, Vensteropstelling: Plan/Perspectief/Elevatie).
Dit artikel behandelt: hoe de plattegrond vrij te draaien en hoe je het een bepaald aantal graden kunt draaien.
Om de plattegrond vrij te roteren
-
Klik op de Kamerdefinitie moduspictogram in de werkbalk:
- Klik in de Plan venster.
-
Klik op de Draaien pictogram in de werkbalk.
-
Het plan wordt getoond met kleuren zoals deze en de draaien tool staat in het midden van het plan.
- Klik met de linkermuisknop en houd vast op een rotatiepijl en sleep om te draaien.
-
Terwijl je draait, wordt de bocht weergegeven in rode stippellijnen en linksonder op je scherm zie je het aantal graden van rotatie.
- Wanneer u klaar bent met draaien, laat u de muisknop los. De vloer komt in de gewenste positie.
De plattegrond met een bepaald aantal graden roteren
-
Klik op de Kamerdefinitie moduspictogram in de werkbalk:
- Klik in de Plan venster.
-
Klik op de Draaien pictogram in de werkbalk.
- De draaien tool staat nu centraal in het plan.
- Dubbelklik op de cirkel in het midden van het gereedschap Roteren. Dit opent de Selectie draaien venster.
- Voer een waarde in de Selectie draaien vak en klik op Van toepassing zijn. U ziet de plattegrond met het aantal ingevoerde graden verschuiven.
Opmerking: Positieve getallen zullen het plan met de klok mee draaien, negatieve getallen zullen het tegen de klok in draaien. - Klik Oké om het raam te sluiten.
Gerelateerde artikelen