Het is heel gebruikelijk om een ruimte te tekenen en te beseffen dat de afmetingen niet perfect zijn. U hoeft niet opnieuw vanaf het begin te beginnen, vanaf versie 12.4a3 biedt Winner de volgende mogelijkheden om afmetingen aan te passen:
Hoeken aanpassen
- Selecteer ruimte definitie modus:
- Klik op de muur, na de hoek die u wilt wijzigen.
-
Klik met de rechtermuisknop en selecteer Wandeigenschappen, waar u een voorbeeld van de vorm van de ruimte ziet.
De kleurcodering van de ruimtepreview is als volgt:
- De huidige (geselecteerde) muur is paars.
- De oude muren zijn aangegeven met een grijze stippellijn.
- Muren die veranderen door de nieuwe vorm van de kamer zijn zwart.
- Muren die niet zijn gewijzigd, worden weergegeven als grijze lijnen.
-
Kies, door een van de onderstaande iconen te selecteren, of u dat wilt
Vorige muur(en) verplaatsen Verplaats volgende muur(en), dit is de standaardinstelling Pas alleen de geselecteerde muur aan - behoud alle andere muren en hoeken.
- Voer de nieuwe hoek en je ziet de hele ruimte update in het voorbeeldvenster.
Opmerking: er verschijnt een toverstaf vóór de lengte van een automatisch berekende muur.
- Als je tevreden bent, klik dan OK, als je een fout hebt gemaakt, klik dan Vorm opnieuw instellen.
- Nadat u op OK heeft geklikt, ziet u dat de wandlengtes en -hoeken automatisch voor u zijn aangepast.
Wandlengtes aanpassen
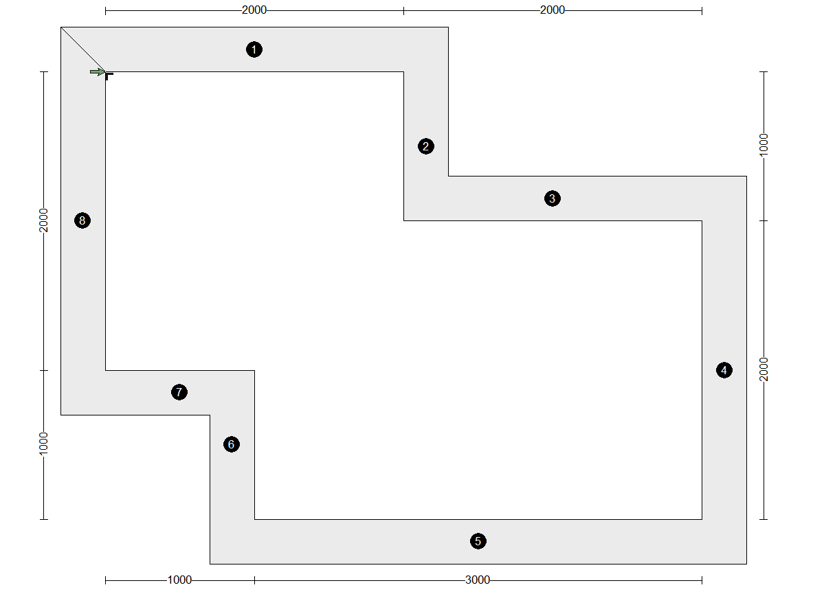
Hier is een voorbeeld van een ruimte:
De klant laat ons weten dat sommige metingen onjuist zijn:
- Muur 3 moet 1m . zijn
- Muur 4: 1.5m
- Muur 5: 2m
- Muur 8: 1.5m
We hebben 4 muren om aan te passen. Hier leest u hoe u het eenvoudig kunt houden:
-
In Ruimtedefinitie modus.
-
Selecteer de eerste muur die moet worden aangepast. In dit voorbeeld is dat zo Wand 3.
Klik met de rechtermuisknop en selecteer Wand eigenschappen.
Opmerking: Wij adviseren om de muren kloksgewijs aan te passen.
-
Kies, door een van de onderstaande iconen te selecteren, of u dat wilt
Vorige muur(en) verplaatsen. Als de lengte van de muur wordt gewijzigd en niet de hoek, is de enige optie het parallel verschuiven van de vorige muur. Verplaats volgende muur(en) dit is de standaardinstelling. Als de wandlengte wordt gewijzigd, kunt u tussen twee opties schakelen. Eén waarbij de hoek naar de volgende muur behouden blijft en één waarbij het eindpunt van de volgende muur behouden blijft.
Pas alleen de geselecteerde muur aan - behoud alle andere muren en hoeken. Indien geselecteerd, behouden alle wanden hun hoek en lengte, dit kan resulteren in het openen van de ruimte.
In dit voorbeeld laten we dit als standaard staan Verplaats volgende muur(en).
-
Verander de muur van Lengte. In dit voorbeeld zou het 1000 moeten zijn in plaats van 2000.
Opmerking: in gevallen waarin er meer dan één oplossing is voor de nieuwe ruimtevorm, zal er een pictogram verschijnen: schakel tussen 2 mogelijke ruimtes.
klik hierop om te schakelen tussen de beschikbare opties = een hoek of parallelle verschuiving wijzigen.
- Je ziet de wijziging direct in het planvoorbeeld.
-
Als je tevreden bent, klik dan OK, als je een fout hebt gemaakt, klik dan Vorm opnieuw instellen.
- Gebruik dezelfde methode om de andere muren (4, 5 en 8) te wijzigen.
Opmerking: U zult uit onderstaande video zien dat het niet nodig is om muur 5 handmatig aan te passen, aangezien deze automatisch wordt aangepast op basis van de wijzigingen die in muur 4 zijn aangebracht.