In Winner, le viste in sezione sono uno strumento per fornire più prospetti nella finestra Vista. Le viste in sezione possono essere utilizzate per creare stampe in elevazione di un'isola o di elementi che non sono posizionati lungo un muro. Inizialmente, la finestra mostrerà solo i prospetti di ogni muro disegnato.
Disegnare una vista in sezione
A livello Variante, dentro Modalità di definizione locale o Modalità arredamento:
- Clicca l'icona Disegna/modifica vista in sezione nella barra degli strumenti.
- Assicurati di aver cliccato l'icona Disegna/Modifica sezione
- Nella finestra Planimetria, prima fai clic con il pulsante sinistro del mouse dove vuoi che inizi la vista in sezione.
-
Fai clic con il pulsante sinistro del mouse di nuovo dove finirà.
La vista in sezione apparirà come una linea, con linee tratteggiate equamente posizionate su entrambi i lati.
Le linee tratteggiate indicano la distanza di visualizzazione della Sezione. Questo identifica quanta area si trova nella zona della vista in sezione, che verrà quindi mostrata nella finestra Vista. Se la distanza tratteggiata è molto breve, gli elementi potrebbero non essere visualizzati in Vista. Questo può essere modificato nelle proprietà della vista in sezione.
Il triangolo indica in che direzione viene creato il prospetto. Il lato con il triangolo rivolto verso la vista in sezione è quello che verrà presentato nella Vista frontale.
La vista in sezione avrà automaticamente un riferimento numerico come ogni muro. Questo può essere modificato nelle proprietà della vista in sezione.
Nota: Una volta disegnata la linea continua della vista in sezione, è possibile fare clic sulla vista in sezione selezionata e la vista in sezione selezionata verrà visualizzata nella finestra di prospetto.
Modificare la direzione di una vista in sezione
A livello Variante, dentro Modalità di definizione locale o Modalità arredamento:
- Clicca l'icona Disegna/modifica vista in sezione nella barra degli strumenti.
- Clicca l'icona Seleziona strumento.
- Fai clic con il pulsante sinistro del mouse in Disegna/modifica sezione per selezionarlo.
- Fare clic con il pulsante destro del mouse e seleziona Cambia direzione.
Modifica una vista in sezione
A livello Variante , dentro Modalità di definizione locale o Modalità arredamento:
- Clicca l'icona Disegna/modifica vista in sezione nella barra degli strumenti.
- Clicca l'icona Seleziona strumento.
- Fai clic con il pulsante sinistro del mouse in Vista in sezione per selezionarlo.
- Fai clic con il pulsante destro del mouse visualizzerà una selezione di opzioni per modificare la vista in sezione.
-
-
Crea misure genererà delle quote di unità entro la distanza deliminata dalla linea tratteggiata della vista in sezione in Planimetria.
-
Spostamento parallelo ti consentirà di digitare una distanza specifica per spostare la vista in sezione.
La direzione di spostamento della linea viene impostata tramite il + o -
-
Cambia direzione cambierà la direzione del punto di vista del prospetto frontale.
-
Proprietà si apriranno le proprietà della sezione. Qui è possibile modificare:
- Lunghezza: Definisce la lunghezza della sezione.
- Vista anteriore: Definisce la distanza della vista in sezione dal fronte (mostrato da una linea tratteggiata blu).
- Vista posteriore: Definisce la distanza della vista in sezione dal lato posteriore (mostrato da una linea tratteggiata blu).
- Altezza: Definisce l'altezza dell'area di visualizzazione della sezione.
- Distanza dal pavimento: Definisce la distanza della vista in sezione dal pavimento.
Nota: Se la vista in sezione tocca un muro esterno e si imposta una distanza dal pavimento superiore a quella dell'altezza del cursore, la vista in sezione non verrà più visualizzata nella finestra Vista.
- Nome: Definisce il nome della vista in sezione. Il nome viene assegnato automaticamente e segue la numerazione delle pareti in base all'ordine in cui sono state posizionate le viste in sezione. Per cambiarlo basta togliere la spunta nella casella di controllo.
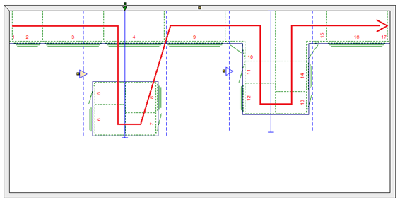
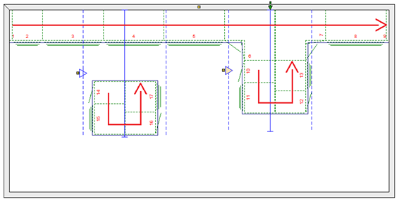
- Controllo intersezioni con muri per numerazione automatica degli elementi: Se la vista in sezione si interseca con il muro e questa casella di controllo è spuntata (come da impostazione predefinita), Winner utilizzerà la vista in sezione come se fosse un muro per calcolare i numeri di posizionamento. Se deselezioni questa spunta, i numeri degli elementi non saranno interessati da alcuna modifica al numero del posizionamento della vista in sezione.
Lo scopo di questa casella di controllo quando è spuntata è che la numerazione degli elementi seguirà prima lungo la parete, quindi se una vista in sezione tocca il muro, Winner darà un numero agli elementi lungo un lato della vista in sezione, poi sull'altro lato della sezione vista e infine continua la numerazione sugli elementi lungo il muro.
-
Crea misure genererà delle quote di unità entro la distanza deliminata dalla linea tratteggiata della vista in sezione in Planimetria.
| Quando la casella di controllo è selezionata (impostazione predefinita) | Quando la casella di controllo è deselezionata |
| La linea rossa indica la direzione che il vincitore seguirà per numerare automaticamente gli elementi. Nel diagramma di sinistra visualizza la vista in sezione come se fosse un muro. Il diagramma di destra numera prima gli elementi lungo la parete esterna poi quelli nele viste in sezione. | |
Stampa una vista in sezione
A livello Variante , dentro Modalità di definizione locale o Modalità arredamento:
- Fare clic sulla linea continua della vista in sezione per selezionarla.
- La vista in prospetto ora mostrerà gli elementi verso cui punta la freccia.
Nota: per cambiare la direzione della vista in sezione vedere i passaggi nella sezione sopra citata.
- Seleziona la finestra Elevazione e clicca con il tasto destro selezionare l'opzione Esportare O Stampa elevazione.
Nota: Per includere viste in sezione nelle stampe batch, vedere: Come aggiungere viste in sezione a una stampa batch
Articoli Correlati
Come posso aggiungere misure alle viste in sezione nella vista in pianta?