Dans Winner, les vues en coupe sont un outil pour fournir plus d'élévations dans la fenêtre Élévation. Les vues en coupe peuvent être utilisées pour créer des impressions d'élévation d'un îlot ou d'éléments qui ne sont pas placés le long d'un mur. Initialement, la fenêtre n'affichera que les élévations de chaque mur dessiné.
Dessiner une vue en coupe
Au niveau de l'option, en Mode de définition de la pièce ou alors en Mode ameublement :
- Clique sur l'icône Dessiner/modifier une vue en coupe dans la barre d'outils.
- Assurer vous que l'icône Outil de dessin est cliquée
- Dans le Plan, d'abord faites un clic gauche où vous voulez que la vue en coupe commence.
-
Clic gauche encore une fois où vous souhaitez qu'elle se termine.
La vue en coupe apparaîtra sous la forme d'une ligne, avec des lignes pointillées placées de manière égale des deux côtés.
Les lignes pointillées représentes les distances de visibilité de la coupe . Cela identifie la partie de la zone qui se trouve dans la zone de vue en coupe, qui sera ensuite affichée dans l'élévation. Si la distance de découpage est très courte, les armoires peuvent ne pas s'afficher sur l' Élévation. Cela peut être modifié dans les propriétés de la vue en coupe.
Le Triangle indique dans quelle direction l'élévation fait face. Le côté avec le triangle faisant face à la vue en coupe est ce qui sera présenté dans l'élévation de face.
La vue en coupe aura automatiquement une référence numérique comme chaque mur. Cela peut être modifié dans les propriétés de la vue en coupe.
Note: Une fois dessinée, la ligne continue de la vue en coupe peut être cliquée et la vue en coupe sélectionnée s'affichera dans la fenêtre d'élévation.
Modifier la direction d'une vue en coupe
Au niveau de l'option, en Mode de définition de la pièce ou alors en Mode ameublement:
- Clique sur l'icône Dessiner/modifier une vue en coupe dans la barre d'outils.
- Clique sur l'icône Sélectionner l'outil.
- Faites un clic gauche sur la Vue fragmentée pour le sélectionner.
- Clic-droit et sélectionnez Inverser le sens.
Modifier une vue en coupe
Au niveau de l'option, en Mode de définition de la pièce ou alors en Mode ameublement:
- Clique sur l'icône Dessiner/modifier une vue en coupe dans la barre d'outils.
- Clique sur l'icône Sélectionner l'outil.
- Faites un clic gauche sur la Vue fragmentée pour le sélectionner.
- Clic droit fera apparaître une sélection d'options pour modifier la vue en coupe.
-
-
Créer des mesures générera des mesures d'unités à l'intérieur de la distance de découpage de la vue en coupe dans la fenêtre Plan.
-
Déplacement parallèle vous permettra de saisir une distance spécifique pour déplacer la vue en coupe.
La direction dans laquelle la ligne est déplacée est définie via le +ou -
-
Inverser la direction permutera la direction du point de vue d'élévation de face.
-
Propriétés ouvrira les propriétés de la section Mur. Ici, vous pouvez modifier:
- Longueur: Définit la longueur de la section de mur.
- Distance de coupe avant: Définit la distance entre la vue en coupe et le découpage avant (indiqué par une ligne bleue en pointillés).
- Distance de coupe arrière: Définit la distance de la vue en coupe par rapport au découpage arrière (indiqué par une ligne bleue en pointillés).
- Hauteur: Définit la hauteur de la zone de visualisation.
- Distance du sol: Définit la distance entre la vue en coupe et le sol.
Note: Si la vue en coupe touche un mur extérieur et que vous définissez une distance au sol supérieure à celle de la hauteur du curseur, la vue en coupe ne sera plus affichée dans la fenêtre d'élévation.
- Nom: Définit le nom de la vue en coupe. Le nom est automatiquement attribué et suit la numérotation des murs dans l'ordre dans lequel vous avez placé la ou les vues en coupe. Pour le changer, décochez simplement la case.
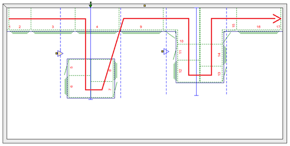
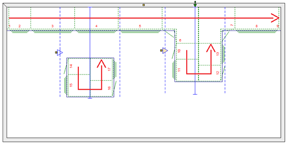
- Vérifier les intersections avec les murs lors de la numérotation automatique des positions des armoires: Si la vue en coupe croise le mur et que cette case est cochée (ce qui est le paramètre par défaut), Winner utilisera la vue en coupe comme mur pour calculer les numéros d'armoires. Si vous décochez cet indicateur, les numéros d'armoire ne seront pas affectés par les modifications de la position de la vue en coupe.
Le but de cette case à cocher lorsqu'elle est cochée est que la numérotation des armoires suivra d'abord le long du mur, puis si une vue en coupe touche le mur, Winner numérotera les armoires d'un côté de la vue en coupe, puis de l'autre côté de la vue en coupe. vue, puis continuez le long du mur à nouveau.
-
Créer des mesures générera des mesures d'unités à l'intérieur de la distance de découpage de la vue en coupe dans la fenêtre Plan.
| Lorsque la case est cochée (valeur par défaut) | Lorsque la case est décochée |
| La ligne rouge indique la direction que Winner suivra pour numéroter automatiquement les armoires. Dans le diagramme de gauche, il traite la vue en coupe comme un mur. Dans le diagramme de droite, il numérote d'abord les armoires le long du mur extérieur, puis les vues en coupe. | |
Imprimer une vue en coupe
Au niveau de l'option, en Mode de définition de la pièce ou alors en Mode ameublement:
- Cliquez sur la ligne continue de la vue en coupe pour la sélectionner.
- La vue en élévation vous montrera maintenant les éléments vers lesquels pointe la flèche.
Note: pour changer la direction de la vue en coupe, voir les étapes de la section nommée ci-dessus.
- Sélectionnez la fenêtre Élévation et clique droit puis sélectionnez l'option Exporter ou Impression en élévation.
Note: Pour inclure des vues en coupe dans les impressions par lots, voir : Comment ajouter des vues en coupe à une impression par lots
Articles Liés
Comment puis-je ajouter des mesures aux vues en coupe dans la vue en plan ?
Comment puis-je joindre des installations à une vue en coupe ?