Yksi näkymistä, jonka Winner tarjoaa on pohjapiirustus. Se näyttää seinät, kalusteet, viistokatot, ikkunat, ovet ja muut asennukset ylhäältä alas -perspektiivissä. Muut näkymät ovat Perspektiivi (katso myös Kuinka liikkua perspektiivissä) ja naamakuva (katso myös Ikkunan asetukset: Pohjapiirustus/Perspektiivi/Naamakuva).
Tämä artikkeli kattaa kuinka pohjapiirrosta voidaan kääntää vapaasti ja kuinka sitä käännetään tietyllä määrällä asteita.
Voit kääntää pohjapiirustuksen vapaasti
- Klikkaa Huoneenmäärittely kuvaketta työkalurivillä:
- Klikkaa Pohjapiirustus ikkunaa.
- Klikkaa Käännä kuvaketta työkalurivillä.
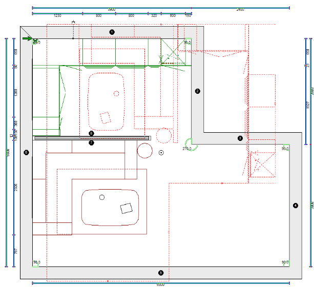
- Pohjapiirustus näytetään väreillä, kuten tämä ja kääntö työkalu on pohjapiirustuksen keskellä.
- Klikkaa hiiren vasemmalla painikkeella kiertonuolta ja pidä sitä painettuna ja käännä vetämällä.
- Kun käännät, käännös näkyy punaisina katkoviivoina ja näytön vasemmassa alakulmassa, näet kääntöasteiden määrän.
- Kun olet valmis, vapauta hiiren painike. Lattia on nyt halutussa asennossa.
Pohjapiirustuksen kääntäminen tietyllä astemäärällä
- Klikkaa Huoneenmäärittely kuvaketta työkalurivillä:
- Klikkaa Pohjapiirustus ikkunaa.
- Klikkaa Käännä kuvaketta työkalurivillä.
- Kääntö työkalu on nyt pohjapiirustuksen keskellä.
- Kaksoisklikkaa ympyrää kääntötyökalun keskellä. Tämä avaa Kierrä valittuja kohteita ikkunan.
- Syötä arvo kohtaan Kierrä ja paina Käytä. Näet pohjapiirustuksen liikkuvan syötetyn asteen määrän mukaisesti.
Huomaa: Positiiviset luvut kääntävät pohjapiirustusta myötäpäivään, negatiiviset luvut kääntävät sitä vastapäivään. - Paina OK sulkeaksesi ikkunan.
Aiheeseen liittyvät artikkelit