On hyvin yleistä, että aloitat piirtämään huonetta ja huomaat, että mitat eivät ole täydellisiä. Sinun ei tarvitse aloittaa alusta, versiosta 12.4a3 alkaen Winner tarjoaa seuraavat mahdollisuudet muuttaa mittoja:
Kulmien muokkaaminen
- Valitse huoneenmäärittely tila:
- Klikkaa seinää, kulman jälkeen, jota haluat muuttaa.
-
Klikkaa hiiren oikealla painikkeella ja valitse Seinän ominaisuudet, jossa näet esikatselun huoneen muodosta.
Huoneen esikatselun värikoodaus on seuraava:
- Nykyinen (valittu) seinä on violetti.
- Vanhat seinät on merkitty harmaalla katkoviivalla.
- Uuden huoneen muodon muuttamat seinät ovat mustia.
- Seinät, joita ei ole muutettu, näytetään harmaina viivoina.
-
Valitse valitsemalla jokin alla olevista kuvakkeista, haluatko
Siirrä edellisiä seiniä Siirrä seuraava(t) seinä(t) tämä on oletusarvo Säädä vain valittua seinää - säilytä kaikki muut seinät ja kulmat.
- Syötä uusi kulma ja näet koko huoneen päivityksen esikatseluikkunassa.
Huomautus: taikasauva ilmestyy automaattisesti lasketun seinän pituuden eteen.
- Jos olet tyytyväinen, klikkaa OK, jos olet tehnyt virheen, klikkaa Palauta muoto.
- Kun olet klikannut OK, näet, että seinien pituudet ja kulmat on säädetty automaattisesti puolestasi.
Seinien pituuden muokkaaminen
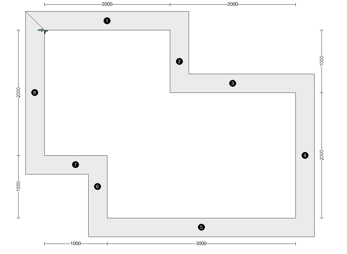
Tässä on esimerkki suunnitelmasta:
Asiakas ilmoittaa, että jotkin mitat ovat virheellisiä:
- Seinän 3 tulee olla 1 m
- Seinä 4: 1,5 m
- Seinä 5: 2m
- Seinä 8: 1,5 m
Meillä on 4 muutettavaa seinää. Näin pidät asian yksinkertaisena:
-
Huoneenmäärittelytilassa
-
Valitse ensimmäinen muokattava seinä. Tässä esimerkissä se on Seinä 3.
Klikkaa hiiren oikealla painikkeella ja valitse Seinän ominaisuudet.
Huomautus: Suosittelemme muokkaamaan seinäsi myötäpäivään.
-
Valitse valitsemalla jokin alla olevista kuvakkeista, haluatko
Siirrä edelliset seinät. Jos seinän pituutta muutetaan eikä kulmaa, ainoa vaihtoehto on siirtää edellistä seinää samansuuntaisesti. Siirrä seuraavat seinät tämä on oletusarvo. Jos seinän pituutta muutetaan, voit vaihtaa kahden valinnan välillä. Sellainen, jossa kulma seuraavaan seinään säilyy, ja sellainen, jossa seuraavan seinän päätepiste säilyy.
Säädä vain valittua seinää - säilyttää kaikki muut seinät ja kulmat. Kun valittuna kaikki seinät säilyttävät kulman ja pituuden, mikä voi johtaa huoneen avautumiseen.
Tässä esimerkissä jätämme sen oletusasetukseksi Siirrä seuraavat seinät.
-
Muuta seinän Pituus. Tässä esimerkissä sen pitäisi olla 1000 2000 sijaan.
Huomautus: tapauksissa, joissa uuteen huonemuotoon on useampi kuin yksi ratkaisu vaihda huoneen muotojen välillä kuvake tulee näkyviin:
klikkaa tätä vaihtaaksesi käytettävissä olevien valintojen välillä = muuta kulmaa tai siirrä suhteessa.
- Näet muutoksen välittömästi suunnitelman esikatselussa.
-
Jos olet tyytyväinen, klikkaa OK, jos olet tehnyt virheen, klikkaa Palauta muoto.
- Käytä samaa menetelmää muiden seinien muokkaamiseen (4, 5 ja 8).
Huomautus: Alla olevasta videosta näet, että seinää 5 ei tarvitse säätää manuaalisesti, koska se mukautuu automaattisesti seinään 4 tehtyjen muutosten perusteella.