Winnerissä, poikkileikkaus on työkalu, joka tarjoaa enemmän naamakuvia Naamakuva ikkunassa. Poikkileikkausnäkymiä voidaan käyttää naamakuvien tulosteiden luomiseen saarekkeesta tai kohteista, joita ei ole sijoitettu seinälle. Aluksi ikkunassa näkyy vain naamakuva kustakin piirretystä seinästä.
Poikkileikkauksen piirtäminen
Vaihtoehto tasolla, Huoneenmäärittely tilassa tai Kohteiden piirtäminen tilassa:
- Paina Piirrä/muokkaa poikkileikkaus kuvaketta työkaluriviltä.
- Varmista, että Piirrä reuna kuvaketta on klikattu
-
Pohjapiirustus ikkunassa, klikkaa ensin hiiren vasemalla painikkeella kohdassa, josta haluat poikkileikkauksen alkavan.
-
Klikkaa hiiren vasemmalla uudestaan mihin haluat poikkileikkauksen loppuvan.
Poikkileikkaus näkyy viivana, jonka molemmilla puolilla on tasaisesti katkoviivat.
Katkoviivat ovat merkkejä Leikkausetäisyysyydestä. Tämä ilmaisee, kuinka suuri osa alueesta on poikkileikkaus alueella, joka näkyy sitten naamakuvassa. Jos leikkausetäisyys on hyvin lyhyt, kalusteet eivät välttämättä näy Naamakuvassa. Tätä voidaan muuttaa poikkileikkauksen ominaisuuksista.
Kolmio osoittaa, mihin suuntaan leikkaus on. Sivu, jossa kolmio on poikkileikkaukseen päin, näytetään naamakuvassa.
Poikkileikkauksessa on automaattisesti numerointi, kuten jokaisella seinällä. Tätä voidaan muuttaa poikkileikkauksen ominaisuuksista.
Huomaa: Kun poikkileikkauksen kiinteä viiva on piirretty, sitä voidaan klikata ja valittu poikkileikkausnäkymä näkyy naamakuva ikkunassa.
Muuta poikkileikkauksen suuntaa
Vaihtoehto tasolla, Huoneenmäärittely tilassa tai Kohteiden piirtäminen tilassa:
- Paina Piirrä/muokkaa poikkileikkaus kuvaketta työkaluriviltä.
- Paina Valitse reuna kuvaketta.
- Klikkaa hiiren vasemmalla painikkeella Poikkileikkausta valitaksesi sen.
- Klikkaa hiiren oikealla painikkeella ja valitse Vaihda suuntaa.
Muokkaa poikkileikkausta
Vaihtoehto tasolla, Huoneenmäärittely tilassa tai Kohteiden piirtäminen tilassa:
- Paina Piirrä/muokkaa poikkileikkaus kuvaketta työkaluriviltä.
- Paina Valitse reuna kuvaketta.
- Klikkaa hiiren vasemmalla painikkeella Poikkileikkausta valitaksesi sen.
- Klikkaamalla hiiren oikealla painikkeella saat valikoiman valintoja poikkileikkauksen muokkaamiseen.
-
-
Luo mitat luo kohteille mitat poikkileikkauksen leikkausetäisyyden sisällä Pohjapiirustus ikkunassa.
-
Samansuuntainen siirtäminen avulla voit siirtää poikkileikkauksta haluamasi etäisyyden verran.
Suunta, johon viiva liikkuu, määritellään painikkeella +tai -
-
Vaihda suuntaa vaihtaa Naamakuva näkymän suuntaa.
-
Ominaisuudet avaa Poikkileikkauksen ominaisuudet. Täällä voit muuttaa:
-Pituus: Määrittää poikkileikkauksen pituuden.
- Leikkausetäisyys edessä: Määrittää poikkileukkauksen etäisyyden etuviivasta (näkyy sinisenä katkoviivana).
- Leikkausetäisyys takana: Määrittää poikkileikkauksen etäisyyden takaviivasta (näkyy sinisenä katkoviivana).
- Korkeus: Määrittää katselualueen korkeuden.
- Etäisyys lattiasta: Määrittää poikkileikkauksen etäisyyden lattiasta.
Huomaa: Jos poikkileikkaus koskettaa ulkoseinää ja asetat etäisyyden lattiasta, joka on korkeampi kuin kohdistimen korkeus, poikkileikkausta ei enää näytetä naamakuvassa.
- Nimi: Määrittää poikkileikkauksen nimen. Nimi määräytyy automaattisesti ja seuraa seinän numerointia siinä järjestyksessä, jossa asetit poikkileikkauksen. Voit muuttaa tätä poistamalla valinnan valintaruudusta.
- Tarkista seinien leikkauspiste kaappien automaattisen numeroinnin yhteydessä: Jos poikkileikkaus leikkaa seinän ja tämä valintaruutu on rastitettu (mikä on oletusasetus), Winner käyttää poikkileikkausta kaappien numeroiden laskemiseen. Jos poistat tämän valinnan, poikkileikkauksen sijainnin muutokset eivät vaikuta kaappinumerointiin.
Tämän valintaruudun tarkoitus, kun se on valittuna on, että kaappien numerointi seuraa ensin seinää pitkin, sitten jos poikkileikkaus koskettaa seinää, Winner numeroi kaapit poikkileikkauksen toiselta puolelta ja sitten poikkileikkauksen toiselta puolelta ja jatkaa sitten taas numerointia seinää pitkin.
-
Luo mitat luo kohteille mitat poikkileikkauksen leikkausetäisyyden sisällä Pohjapiirustus ikkunassa.
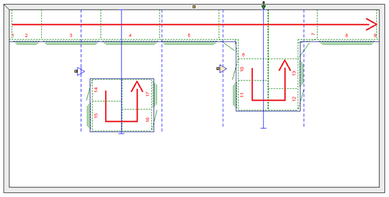
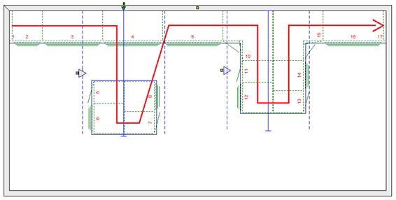
| Kun valintaruutu on valittuna (oletus) | Kun valintaruutua ei ole valittu |
| Punainen viiva ilmaisee suunnan, jota Winner seuraa automaattisessa kaappinen numeroinnissa. Vasemmassa kaaviossa se käsittelee poikkileikkausta seinänä. Oikeassa kaaviossa se numeroi ensin ulkoseinän kaapit ja sitten poikkileikkaukset. | |
Tulosta poikkileikkausnäkymä
Vaihtoehto tasolla, Huoneenmäärittely tilassa tai Kohteiden piirtäminen tilassa:
- Valitse poikkileikkausnäkymä klikkaamalla yhtenäistä viivaa.
- Naamakuva näyttää nyt kohteet, joihin nuoli osoittaa.
Huomautus: muuttaaksesi poikkileikkausnäkymän suuntaa, katso vaiheet yllä mainitusta osiosta.
- Valitse Naamakuva ikkuna ja klikkaa hiiren oikealla painikkeella valitse valinta Vie tai Tulosta naamakuva.
Huomautus: Katso poikkileikkausnäkymien sisällyttäminen eräajotulosteisiin: Poikkileikkausnäkymien lisääminen eräajotulostukseen
Aiheeseen liittyvät artikkelit
Miten lisätä mittoja poikkileikkaukseen pohjapiirustuksessa?