En Winner, los sectores son una herramienta para proporcionar más alzados en la ventana de Alzado. Inicialmente, la ventana solo mostrará los alzados de cada pared dibujada. Las vistas en sección son útiles para mostrar las medidas y la planificación de los diseños que cuentan con muebles fuera de la pared, como una isla.
Dibujo de una vista en sección
En la Alternativa, en Modo de definición de pieza o modo de mobiliario:
- Haga clic en el icono Dibujar/alterar sector en la barra de herramientas.
- Haga clic en el icono de la Herramienta de dibujo.
- En la ventana de Plano, primero haga click izquierdo donde desea que comience la vista en sección.
-
Click izquierdo otra vez donde terminará.
La vista en sección aparecerá como una línea, con líneas de puntos colocadas por igual en ambos lados.
Las líneas discontinuas son las que indican donde se hace el cortey la distancia. Esto identifica qué parte del área se encuentra en la zona de vista del de la estancia, que luego se mostrará en el alzado. Si la distancia de corte es muy corta, es posible que los muebles no se muestren en el Alzado. Esto se puede cambiar en las propiedades del sector.
Él triángulo indica en qué dirección está orientado el alzado. El lado con el triángulo mirando hacia la vista en sección es lo que se mostrará en el alzado.
La vista en sección tendrá automáticamente una referencia numérica como cada muro. Esto se puede cambiar en las propiedades del sector.
Nota: Una vez dibujada la línea sólida de la vista en sección, se puede hacer clic en ella y la vista en sección seleccionada se mostrará en la ventana de Alzado.
Cambiar la dirección de sector
En la Alternativa, en Modo de definición de pieza o modo de mobiliario:
- Haga clic en el icono Dibujar/alterar sector en la barra de herramientas.
- Haga clic en el icono flecha negra.
- Haga clic con el botón izquierdo en el sector para seleccionarlo.
- Botón derecho del ratón y seleccione Cambiar dirección.
Editar una Sector
En la Alternativa, en Modo de definición de pieza o modo de mobiliario:
- Haga clic en el icono Dibujar/alterar sector en la barra de herramientas.
- Haga clic en el icono flecha negra.
- Haga clic con el botón izquierdo en el sector para seleccionarlo.
- Clic derecho aparecerá una selección de opciones para editar el sector.
-
-
Crear medidas generará medidas de unidades dentro de la distancia de recorte del sector en la ventana Plano.
-
desplazamiento paralelo le permitirá escribir una distancia específica para mover el sector.
La dirección en la que se mueve la línea se establece mediante el +o -
-
Cambiar dirección cambiará la dirección del punto del sector.
-
Propiedades abrirá las propiedades del sector. Aquí puede cambiar la:
- Longitud: Define la longitud del sector.
- Distancia flecha-centro: Define la distancia de la vista en sección desde la flecha hasta el sector (mostrado por una línea azul discontinua).
- Distancia del centro al corte: Define la distancia de la vista en sección desde el recorte posterior (que se muestra con una línea azul discontinua).
- Altura: Define la altura del sector.
- Distancia desde el suelo: Define la distancia de la vista en sección desde el suelo.
Nota: si la vista en sección toca una pared exterior y establece una distancia desde el suelo superior a la altura del cursor, la vista en sección ya no se mostrará en la ventana de alzado.
- Nombre: Define el nombre del sector El nombre se asigna automáticamente y sigue a la numeración de las paredes en el orden en que colocaron los sectores Para cambiarlo simplemente desmarque la casilla de Automático.
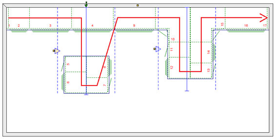
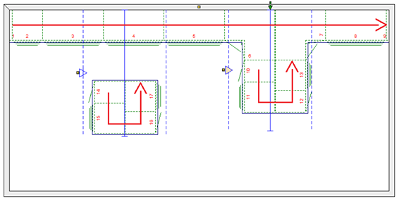
- Verifique las intersecciones con las paredes durante la numeración automática de la posición de los muebles: Si la vista en sección se cruza con la pared y esta casilla de verificación está marcada (que es la configuración predeterminada), Winner usará la vista en sección como una pared para calcular los números de los muebles. Si desmarca este check, los números de los muebles no se verán afectados por ningún cambio en la posición de la vista en sección.
El propósito de esta casilla de verificación cuando está marcada es que la numeración de los muebles siga primero a lo largo de la pared, luego, si una vista en sección toca la pared, Winner numerará los muebles a lo largo de un lado de la vista en sección, luego en el otro lado de la vista en sección. vista y luego continuar a lo largo de la pared de nuevo.
-
Crear medidas generará medidas de unidades dentro de la distancia de recorte del sector en la ventana Plano.
| Cuando la casilla de verificación está marcada (el valor predeterminado) | Cuando la casilla de verificación no está marcada |
| La línea roja indica la dirección que seguirá Winner para numerar automáticamente los muebles. En el diagrama de la izquierda, trata la vista en sección como una pared. En el diagrama de la derecha, enumera primero los muebles a lo largo de la pared externa y luego las vistas en sección. | |
Artículos relacionados
¿Cómo puedo agregar medidas en el sector en en la vista de plano?