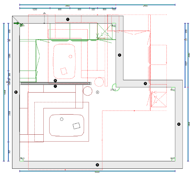
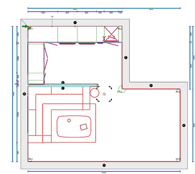
Eine der Ansichten, die Winner bietet, ist der Grundriss oder Raumplan. Es zeigt Wände, Schränke, Dachschrägen, Fenster, Türen und andere Einbauten in einer Top-Down-Perspektive. Die anderen Ansichten sind die Perspektive (siehe auch Wie man sich in der Perspektive bewegt) und die Ansicht (siehe auch Fensterkonfiguration: Grundriss/Perspektive/Ansicht).
Dieser Artikel behandelt wie man den Grundriss frei dreht und wie man diesen um eine bestimmte Gradzahl dreht.
Um den Grundriss frei zu drehen
- Klicken Sie auf das Raumdefinition Modus-Symbol in der Symbolleiste:
- Klicken Sie in das Grundriss Fenster.
- Klicken Sie auf das Drehen Symbol in der Symbolleiste.
- Der Grundriss wird so farbig dargestellt und das Drehen Werkzeug befindet sich in der Mitte des Grundrisses.
- Klicken Sie mit der linken Maustaste auf einen Drehpfeil, halten Sie die Maustaste gedrückt und ziehen Sie, um zu drehen.
- Während Sie drehen, wird die Drehung in roten gestrichelten Linien angezeigt und unten links auf Ihrem Bildschirm sehen Sie die Anzahl der Drehungsgrade.
- Wenn Sie die Drehung abgeschlossen haben, lassen Sie die Maustaste los. Der Boden befindet sich in der gewünschten Position.
Zum Drehen des Grundrisses um eine festgelegte Gradzahl
- Klicken Sie auf das Raumdefinition Modus-Symbol in der Symbolleiste:
- Klicken Sie in das Grundriss Fenster.
- Klicken Sie auf das Drehen Symbol in der Symbolleiste.
- Das Drehen Werkzeug steht jetzt im Zentrum des Grundrisses.
- Doppelklicken Sie auf den Kreis in der Mitte des Drehwerkzeugs. Dies öffnet das Auswahl drehen Fenster.
- Geben Sie einen Wert in das Drehen um Kästchen ein und klicken Sie auf OK. Sie sehen, wie sich der Grundriss um die eingegebene Gradzahl verschiebt.
Hinweis: Positive Zahlen drehen den Plan im Uhrzeigersinn, negative Zahlen drehen ihn gegen den Uhrzeigersinn. - Klicken Sie auf OK um das Fenster zu schließen.
Ähnliche Artikel