Es kommt oft vor, dass man beim Zeichnen eines Raums feststellt, dass die Maße nicht genau passen. Sie müssen nicht von vorne anfangen. Ab Version 12.4a3 bietet Winner folgende Möglichkeiten zur Änderung von Maßen:
Winkel anpassen
- Wählen Sie den Raumdefinitionsmodus aus:
- Klicken Sie auf die Wand, nach dem Winkel, den Sie ändern möchten.
-
Mit einem Rechtsklick wählen Sie Eigenschaften Wand aus, wo Sie eine Vorschau der Raumform sehen können.
Die Farbkodierung der Raumvorschau ist wie folgt:
– Die aktuelle (ausgewählte) Wand ist lila.
- Die alten Wände sind durch eine graue gestrichelte Linie gekennzeichnet.
- Wände die durch die neue Raumform verändert werden, sind schwarz.
- Wände, die nicht verändert werden, werden als graue Linien dargestellt.
-
Wählen Sie, indem Sie eines der untenstehenden Symbole auswählen, ob Sie
die vorherigen Wand/Wände verschieben möchten. die nächsten Wand/Wände verschieben möchten. Dies ist die Standardeinstellung Nur markierte Wand anpassen. Übrige Wände und Winkel unverändert beibehalten.
- Geben Sie den neuen Winkel ein, und Sie werden feststellen, dass sich der gesamte Raum im Vorschaufenster aktualisiert.
Hinweis: Ein Zauberstab wird vor der Länge einer automatisch berechneten Wand erscheinen.
- Wenn Sie zufrieden sind, klicken Sie auf OK; wenn Sie einen Fehler gemacht haben, klicken Sie auf Figur zurücksetzen.
- Nachdem Sie auf OK geklickt haben, werden Sie feststellen, dass die Wandlängen und Winkel automatisch für Sie angepasst wurden.
Wandlängen anpassen
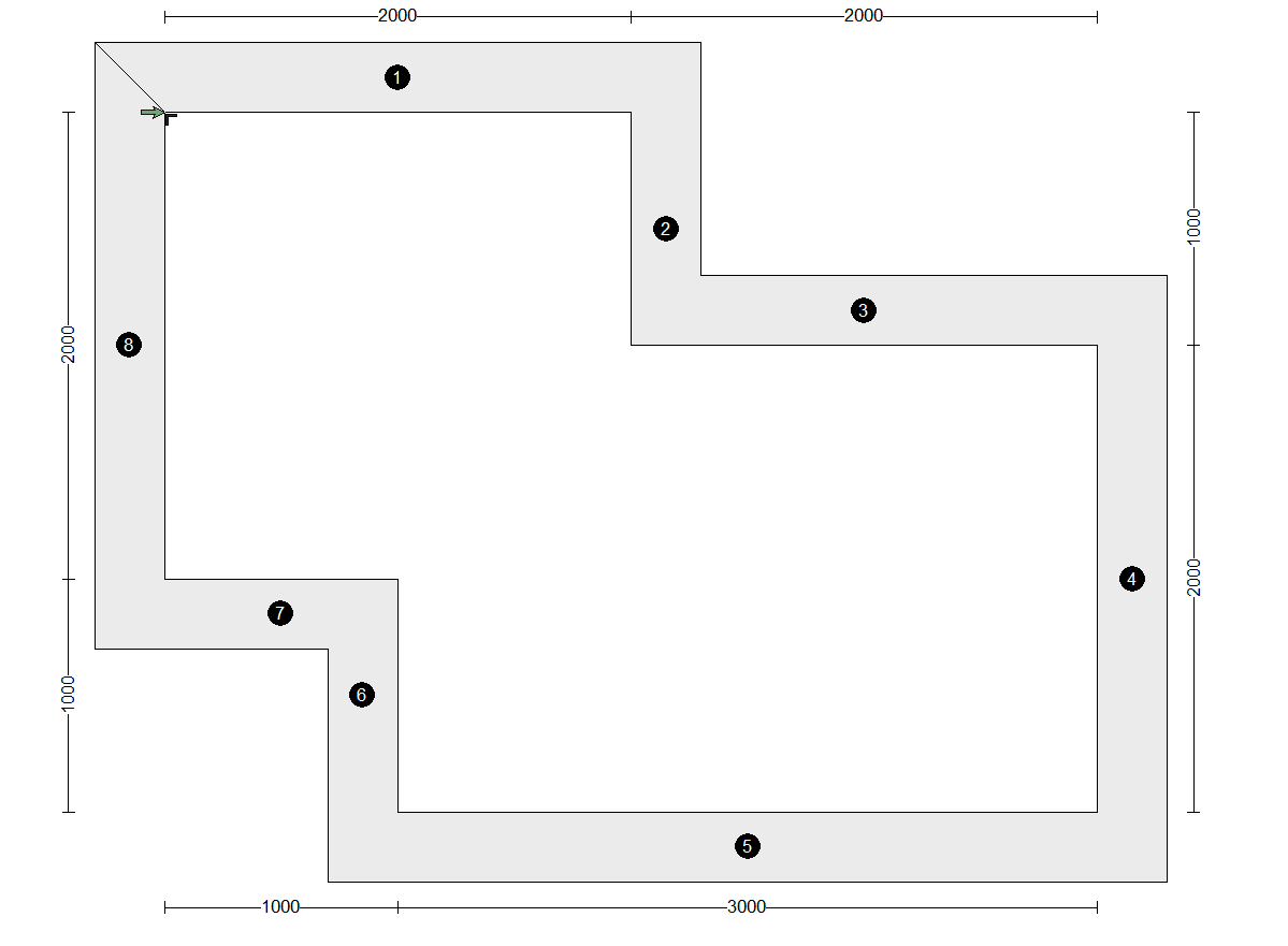
Hier ist ein Beispiel für einen Grundriss:
Der Kunde teilt uns mit, dass einige Maße nicht korrekt sind:
- Wand 3 muss 1m sein
- Wand 4: 1,5 m
- Wand 5: 2m
- Wand 8: 1,5 m
Wir haben 4 Wände zu ändern. So einfach geht's:
-
Im Raumdefinitionsmodus.
-
Wählen Sie die erste Wand aus, die angepasst werden soll. In diesem Beispiel ist es Wand3.
Klicken Sie mit der rechten Maustaste und wählen Sie Eigenschaften Wand aus.
Hinweis: Wir empfehlen die Wände im Uhrzeigersinn zu ändern .
-
Wählen Sie, indem Sie eines der untenstehenden Symbole auswählen, ob Sie
die vorherigen Wand/Wände verschieben möchten. Wenn die Wandlänge geändert wird und nicht der Winkel, ist die einzige Option, die vorherige Wand parallel zu verschieben. die nächsten Wand/Wände verschieben möchten. Dies ist die Standardoption. Wenn die Wandlänge geändert wird, können Sie zwischen zwei Optionen wechseln. Eine Option, bei der der Winkel zur nächsten Wand beibehalten wird, und eine Option, bei der der Endpunkt der nächsten Wand beibehalten wird.
Nur die markierte Wand anpassen. Übrige Wände und Winkel unverändert beibehalten. Wenn ausgewählt, behalten alle Wände ihren Winkel und ihre Längen bei, was dazu führen kann, dass der Raum geöffnet wird.
In diesem Beispiel belassen wir es bei der Standardeinstellung Nächste Wand(n) verschieben.
-
Ändern Sie dieWandlänge. In diesem Beispiel sollten es 1000 statt 2000 sein.
Hinweis: In Fällen, in denen es mehr als eine Lösung für die neue Raumform gibt, wird ein Umschalter zwischen den Raumformen angezeigt:
Klicken Sie darauf, um zwischen den verfügbaren Optionen zu wechseln = Winkel ändern oder Parallel verschieben.
- Sie können die Änderung sofort in der Grundrissvorschau sehen.
-
Wenn Sie zufrieden sind, klicken Sie auf OK. Wenn Sie einen Fehler gemacht haben, klicken Sie auf Form zurücksetzen.
- Verwenden Sie dieselbe Methode, um die anderen Wände (4, 5 und 8) zu ändern.
Hinweis: Im folgenden Video können Sie sehen, dass Wand 5 nicht manuell angepasst werden muss, da sie automatisch anhand der an Wand 4 vorgenommenen Änderungen angepasst wird.