Det er meget almindeligt at begynde at tegne et rum og indse, at dimensionerne ikke er perfekte. Du behøver ikke starte igen fra begyndelsen, fra version 12.4a3 tilbyder Winner følgende muligheder for at ændre dimensioner:
Justering af vinkler
- Vælg rumdefinering:
- Klik på væggen, efter den vinkel du gerne vil ændre.
-
Højreklik og vælg Egenskaber for væg, hvor du vil se en forhåndsvisning af rummets form.
Farvekoden for forhåndsvisningen af rummet er som følger:
- Den nuværende (markerede) væg er lilla.
- De gamle vægge er markeret med en grå stiplet linje.
- Vægge, der ændres af den nye rumform, er sorte.
- Vægge, der ikke ændres, vises som grå linjer.
-
Vælg, ved at vælge et af ikonerne nedenfor, om du vil
Flyt tidligere væg(e) Flyt næste væg(e) dette er standard Juster kun valgt væg - behold alle andre vægge og vinkler.
- Gå ind i ny vinkel, og du vil se hele rummets opdateret i forhåndsvisningsvinduet.
Bemærk: en tryllestav vises før længden af en automatisk beregnet væg.
- Hvis du er tilfreds, klik OK, hvis du har lavet en fejl, klik Nulstil form.
- Når du har klikket OK, vil du se, at væglængder og -vinkler automatisk er blevet justeret for dig.
Justering af væglængder
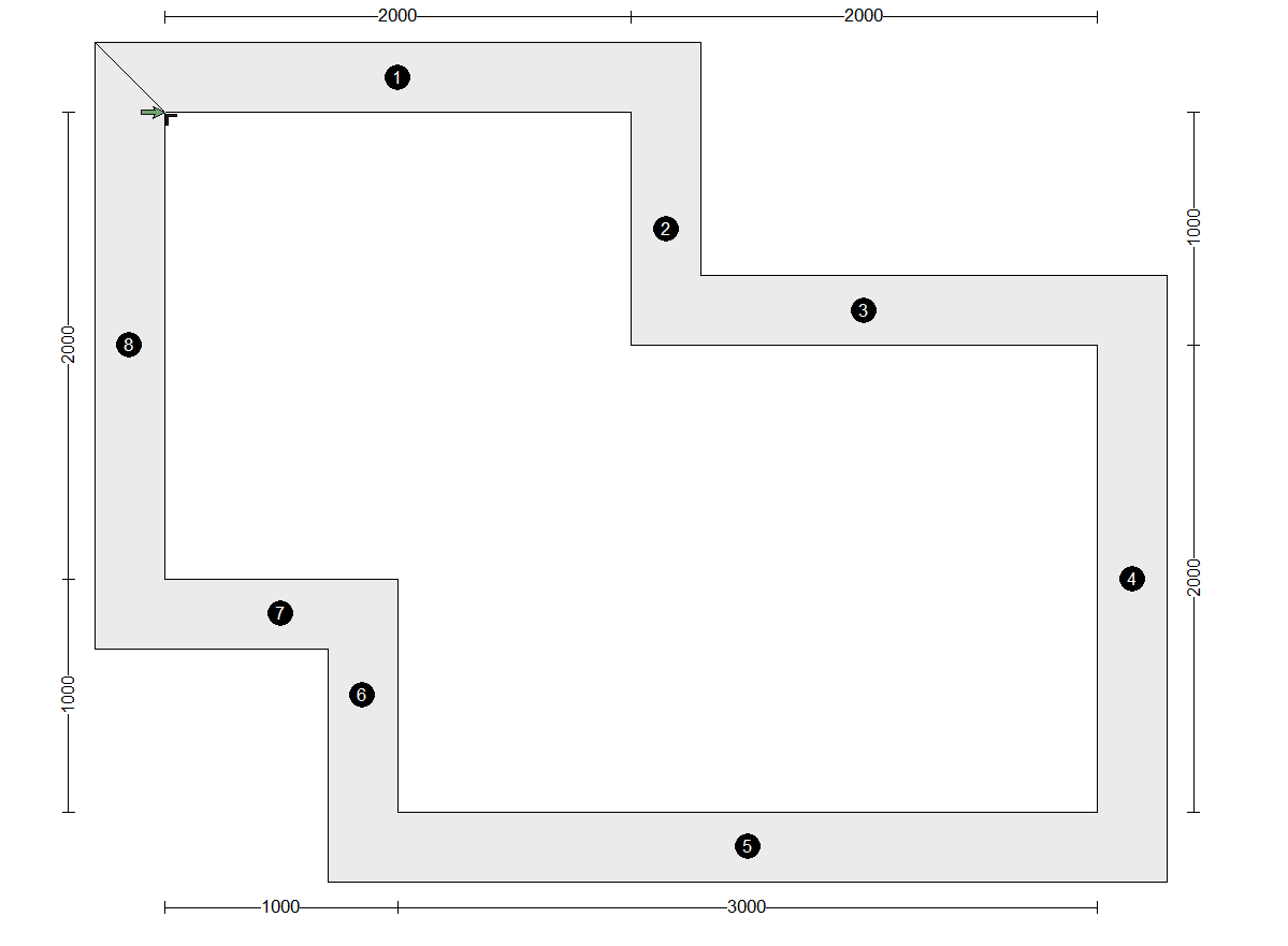
Her er et eksempel på en plantegning:
Kunden informerer os om, at nogle mål er forkerte:
- Væg 3 skal være 1 m
- Væg 4: 1,5 m
- Væg 5: 2 m
- Væg 8: 1,5 m
Vi har 4 vægge, der skal ændres. Sådan holder du det enkelt:
-
I Rumdefininering.
-
Vælg den første væg, der skal justeres. I dette eksempel er det Væg 3.
Højreklik og vælg Egenskaber for væg.
Bemærk: Vi anbefaler at tilpasse dine vægge med uret.
-
Vælg, ved at vælge et af ikonerne nedenfor, om du vil
Flyt tidligere væg(e). Hvis væglængden ændres og ikke vinklen, er den eneste mulighed at parallelforskyde den forrige væg. Flyt næste væg(e) dette er standard. Hvis væglængden ændres, vil du være i stand til at skifte mellem to muligheder. En hvor vinklen til næste væg er bevaret og en hvor endepunktet på næste væg er bevaret.
Juster kun valgt væg - behold alle andre vægge og vinkler. Når det er valgt, beholder alle vægge deres vinkel og længder, dette kan resultere i åbning af rummet.
I dette eksempel vil vi beholde standard Flyt næste væg(e).
-
Skift væggens Længde. I dette eksempel skal den være 1000 i stedet for 2000.
Bemærk: i tilfælde, hvor der er mere end én løsning til den nye rumform, vil et skifte mellem rumformerne ikon vises:
klik her for at skifte mellem de tilgængelige muligheder = ændre en vinkel eller parallelforskydning.
- Du kan se ændringen med det samme i plantegningens forhåndsvisning.
-
Hvis du er tilfreds, klik OK, hvis du har lavet en fejl, klik Nulstil form.
- Brug samme metode til at tilpasse de andre vægge (4, 5 og 8).
Bemærk: Du vil se fra videoen nedenfor, at der ikke er behov for at justere væg 5 manuelt, da den automatisk justeres baseret på ændringerne på væg 4.